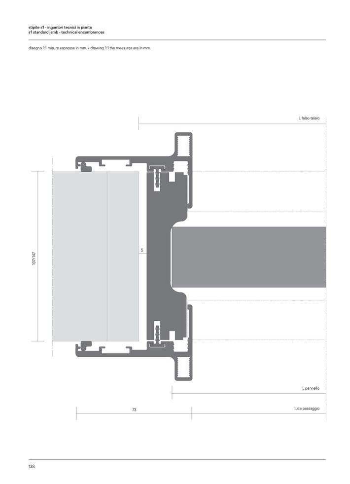
stipite s1 - ingombri tecnici in pianta

s1 standard jamb - technical encumbrances

disegno 1:1 misure espresse in mm. / drawing 1:1 the measures are in mm.

L falso telaio

5

73

L pannello

luce passaggio

138

1

0

7

/

1

4

7