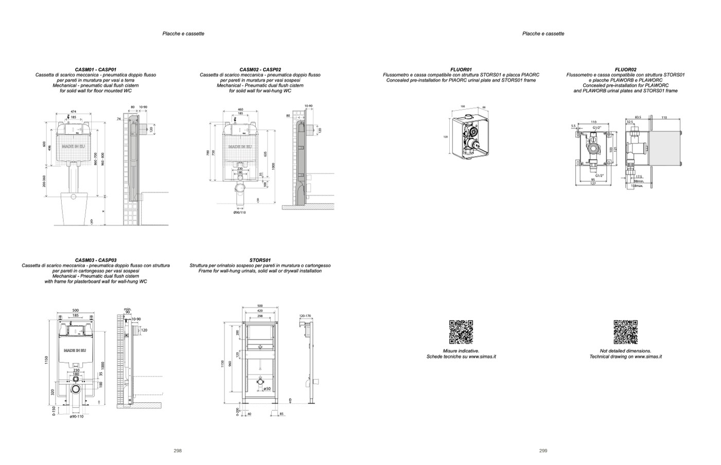
CASM01 - CASP01

Cassetta di scarico meccanica - pneumatica doppio flusso

per pareti in muratura per vasi a terra

Mechanical - pneumatic dual flush cistern

CASM 01

for solid wall for floor mounted WC

CASP 01

80 10-90

CASM02 - CASP02

Cassetta di scarico meccanica - pneumatica doppio flusso

per pareti in muratura per vasi sospesi

Mechanical - Pneumatic dual flush cistern

CASM 02

for solid wall for wal-hung WC

CASP 02

FLUOR01

Flussometro e cassa compatibile con struttura STORS01 e placca PIAORC

Concealed pre-installation for PIAORC urinal plate and STORS01 frame

FLUOR02

Flussometro e cassa compatibile con struttura STORS01

e placche PLAWORB e PLAWORC

Concealed pre-installation for PLAWORC

and PLAWORB urinal plates and STORS01 frame

FLUOR02

474

185

74

80

83.5

110

0

CASM03 - CASP03

Cassetta di scarico meccanica - pneumatica doppio flusso con struttura

per pareti in cartongesso per vasi sospesi

Mechanical - Pneumatic dual flush cistern

CASM 03

with frame for plasterboard wall for wall-hung WC

CASP 03

STORS01

Struttura per orinatoio sospeso per pareti in muratura o cartongesso

Frame for wall-hung urinals, solid wall or drywall installation

500

185

min.

90

500

420

298

120-170

10-90

Placche e cassette

Placche e cassette

0

2

1

0

2

1

120

0

2

0

0

2

1

Misure indicative.

Schede tecniche su www.simas.it

Not detailed dimensions.

Technical drawing on www.simas.it

5

1

0

0

5

1

0

6

9

0

1

1

230

180

5

3

0

1

0

2

3

0

0

5

1

-

0

2

-

0

0

ø90-110

40

ø50

0

85

298

299

STORSO1 - x orinatoio

460

185

10-90

FLUOR01

120

100

66

0

6

6

9

4

0

0

3

0

1

1

2

1

0

0

8

7

5

7

5

3

6

7

-

0

8

-

0

6

8

6

9

0

230

1

180

0

5

3

G1/2’’

95

6

3

-

0

2

0

1

127

0

x

Ø90/110

17.5

98min.

158max.

5.5

110

G1/2’’

32.5