MODULI ORDINE

SUPER ICS

26

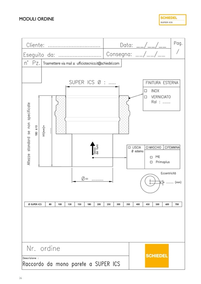
Trasmettere via mail a: ufficiotecnico.it@schiedel.com

Ø SUPER ICS

80

100

130

150

180

200

250

300

350

400

450

500

600

700

ME