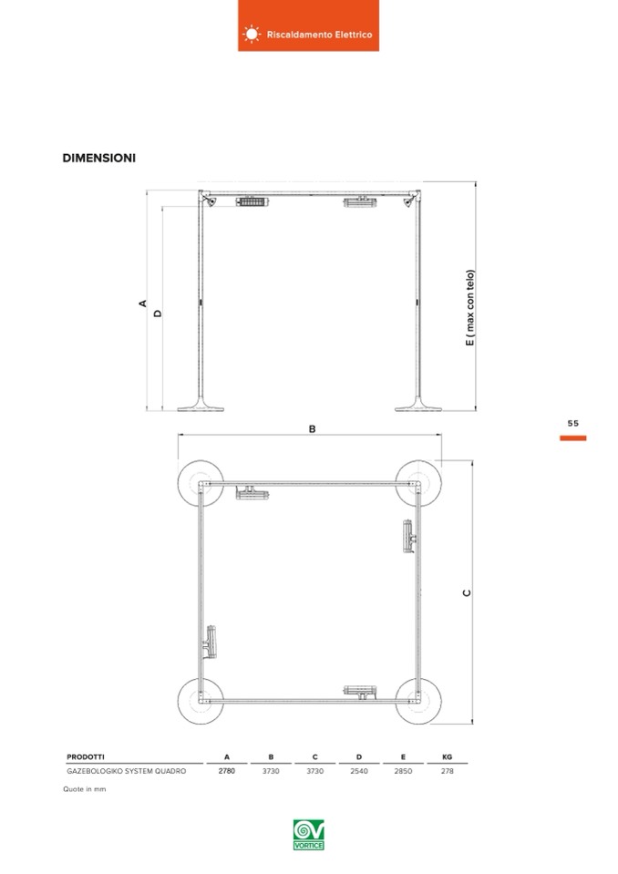
DIMENSIONI

PRODOTTI

GAZEBOLOGIKO SYSTEM QUADRO

Quote in mm

A

B

C

D

E

KG

2780

3730

3730

2540

2850

278

J

Riscaldamento Elettrico

C

E

(

m

a

x

c

o

n

t

e

l

o

)

A

D

B

55