REFRIGERAZIONE

REFRIGERAZIONE

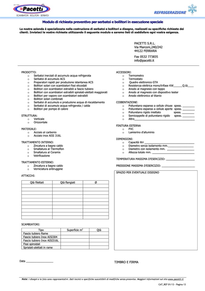
Modulo di richiesta preventivo per serbatoi e bollitori in esecuzione speciale

La nostra azienda è specializzata nella costruzione di serbatoi e bollitori a disegno, realizzati su specifiche richieste dei

clienti. Inviateci le vostre richieste utilizzando il seguente modulo e saremo lieti di soddisfare ogni vostra esigenza.

PRODOTTO:

o

Serbatoi inerziali di accumulo acqua refrigerata

o

Serbatoi di accumulo ACS

o

Preparatori rapidi per produzione istantanea ACS

o

Bollitori solari con scambiatori fissi elicoidali

o

Bollitori con scambiatori estraibili a fascio tubiero

o

Bollitori con scambiatori estraibili spiralati-alettati maggiorati

o

Bollitori per vapore con scambiatori estraibili

o

Bollitori solari combinati

o

Serbatoi di accumulo e produzione acqua di riscaldamento

o

Serbatoi di accumulo acqua refrigerata / calda

o

Bollitori per pompe di calore

STRUTTURA:

o

Verticale

o

Orizzontale

MATERIALE:

o

Acciaio al carbonio

o

Acciaio inox AISI 316L

TRATTAMENTO INTERNO:

o

Zincatura a bagno caldo

o

Smaltatura al Ttermoflon

o

Smaltatura al Ceramix

o

Vetrificazione

TRATTAMENTO ESTERNO:

o

Zincatura a bagno caldo

o

Verniciatura antiruggine

ATTACCHI:

PACETTI S.R.L.

Via Marconi,240/242

44122 FERRARA

Fax 0532 773835

info@pacetti.it

ACCESSORI:

o

Termometro

o

Termostato

o

Quadro elettronico GTA

o

Resistenza elettrica mono/trifase KW______Q.tà____

o

Anodo al magnesio con tappo

o

Anodo al magnesio con dispositivo tester

o

Anodo elettronico al titanio

COIBENTAZIONE:

o

Poliuretano espanso a cellule chiuse spess. ________

o

Poliuretano espanso a cellule aperte spess. ________

o

Poliuretano rigido iniettato

spess. ________

o

Semicoppelle di poliuretano rigido

spess. ________

o

Altro________________________________________

FINITURA ESTERNA

o

PVC

o

Lamierino d’alluminio

DIMENSIONI:

o

Capacità litri _________________________________

o

Diametro senza isolamento mm._________________

o

Diametro con isolamento mm. __________________

o

Altezza totale mm. ____________________________

TEMPERATURA MASSIMA D’ESERCIZIO: ___________________

PRESSIONE MASSIMA D’ESERCIZIO: ______________________

SPAZIO PER EVENTUALE DISEGNO

Qtà filettati

Qtà flangiati Ø

SCAMBIATORI:

Data __________________

TIMBRO E FIRMA

Tipo

Superficie m

2

Qtà

Fascio tubiero Rame

Fascio tubiero Inox AISI304

Fascio tubiero Inox AISI316L

Fissi spiroidali

Sprialati-alettati in rame

Note: I disegni e le foto sono rappresentativi. Dati tecnici e specifiche suscettibili di modifiche senza preavviso. Maggiori informazioni sul sito www.pacetti.it

CAT_REF 01/13 - Pagina 13