82

WSP 222 100

Pannello color antracite con frontale

tutto in vetro

Larghezza 60 cm, Altezza 29 cm

WSP 222 110

Pannello color acciaio con frontale

tutto in vetro

Larghezza 60 cm, Altezza 29 cm

WSP 222 130

Pannello color silver con frontale tutto

in vetro

Larghezza 60 cm, Altezza 29 cm

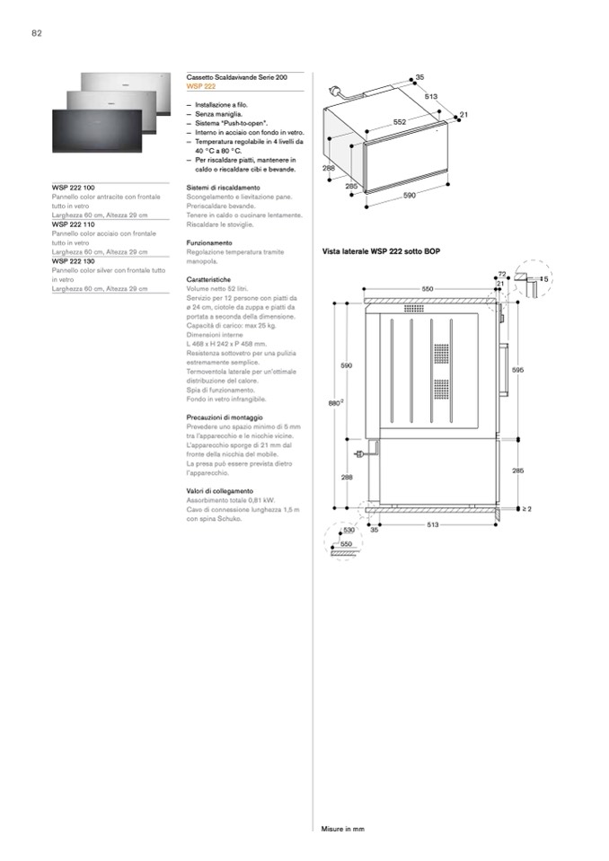
Cassetto Scaldavivande Serie 200

WSP 222

― Installazioneafilo.

― Senzamaniglia.

― Sistema“Push-to-open”.

― Internoinacciaioconfondoinvetro.

― Temperaturaregolabilein4livellida

40 °C a 80 °C.

― Perriscaldarepiatti,mantenerein

caldo o riscaldare cibi e bevande.

Sistemi di riscaldamento

Scongelamento e lievitazione pane.

Preriscaldare bevande.

Tenere in caldo o cucinare lentamente.

Riscaldare le stoviglie.

Funzionamento

Regolazione temperatura tramite

manopola.

Caratteristiche

Volume netto 52 litri.

Servizio per 12 persone con piatti da

ø 24 cm, ciotole da zuppa e piatti da

portata a seconda della dimensione.

Capacità di carico: max 25 kg.

Dimensioni interne

L 468 x H 242 x P 458 mm.

Resistenza sottovetro per una pulizia

estremamente semplice.

Termoventola laterale per un’ottimale

distribuzione del calore.

Spia di funzionamento.

Fondo in vetro infrangibile.

Precauzioni di montaggio

Prevedere uno spazio minimo di 5 mm

tra l’apparecchio e le nicchie vicine.

L’apparecchio sporge di 21 mm dal

fronte della nicchia del mobile.

La presa può essere prevista dietro

l’apparecchio.

Valori di collegamento

Assorbimento totale 0,81 kW.

Cavo di connessione lunghezza 1,5 m

con spina Schuko.

Vista laterale WSP 222 sotto BOP

Misure in mm