75

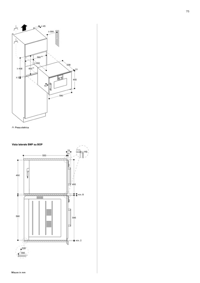
Presa elettrica

Vista laterale BMP su BOP

Misure in mm