33

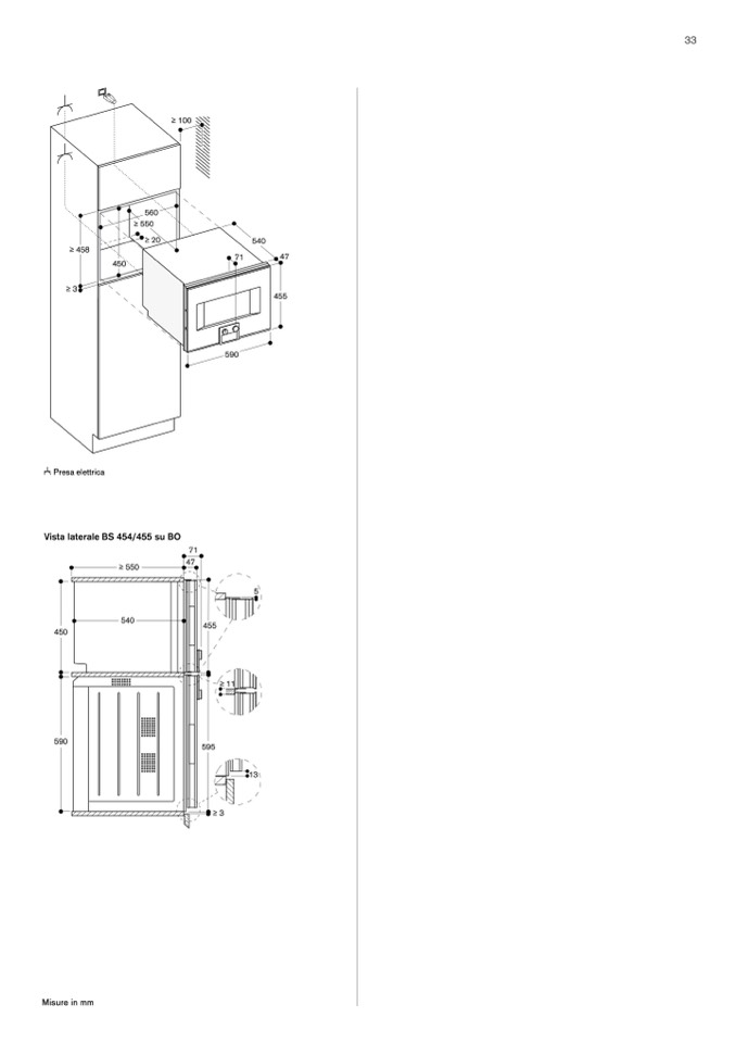
Presa elettrica

Misure in mm