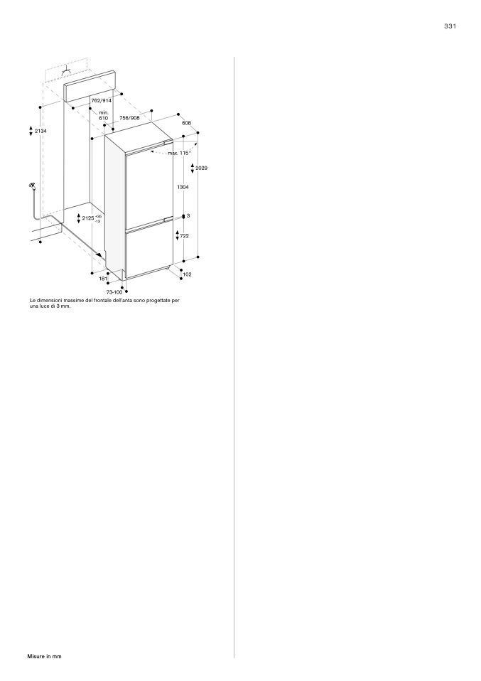
331

Misure in mm