253

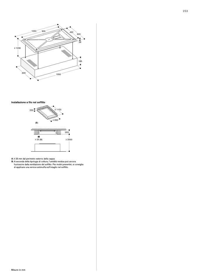
Installazione a filo nel soffitto

A: ≥ 25 mm dal perimetro esterno della cappa

B: A seconda della tipologia di cottura, l’umidità residua può ancora

fuoriuscire dalla ventilazione del soffitto. Per motivi preventivi, si consiglia

di applicare una vernice antimuffa sull’intaglio nel soffitto.

Misure in mm