250

AR 413 122

Corpo metallico

Capacità max. estrazione aria 760 m3/h

Installazione nello zoccolo

Per ricircolo aria

Accessori per l’installazione

AA 010 410

Griglia color acciaio 90 cm, inclusiva

di materiale di fissaggio. Regolabile

in altezza

Accessori speciali

AA 413 111

2 filtri ai carboni attivi

Per il ricircolo dell’aria

Per l’installazione in modalità ricircolo

consultare gli accessori nella sezione

dedicata.

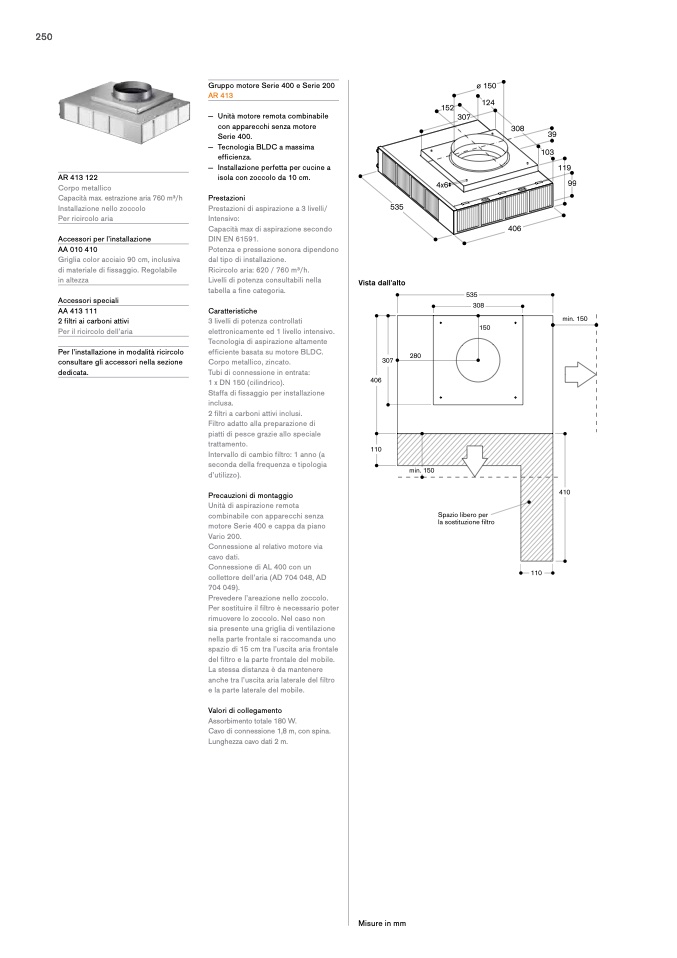
Gruppo motore Serie 400 e Serie 200

AR 413

― Unitàmotoreremotacombinabile

con apparecchi senza motore

Serie 400.

― TecnologiaBLDCamassima

efficienza.

― Installazioneperfettapercucinea

isola con zoccolo da 10 cm.

Prestazioni

Prestazioni di aspirazione a 3 livelli/

Intensivo:

Capacità max di aspirazione secondo

DIN EN 61591.

Potenza e pressione sonora dipendono

dal tipo di installazione.

Ricircolo aria: 620 / 760 m3/h.

Livelli di potenza consultabili nella

tabella a fine categoria.

Caratteristiche

3 livelli di potenza controllati

elettronicamente ed 1 livello intensivo.

Tecnologia di aspirazione altamente

efficiente basata su motore BLDC.

Corpo metallico, zincato.

Tubi di connessione in entrata:

1 x DN 150 (cilindrico).

Staffa di fissaggio per installazione

inclusa.

2 filtri a carboni attivi inclusi.

Filtro adatto alla preparazione di

piatti di pesce grazie allo speciale

trattamento.

Intervallo di cambio filtro: 1 anno (a

seconda della frequenza e tipologia

d’utilizzo).

Precauzioni di montaggio

Unità di aspirazione remota

combinabile con apparecchi senza

motore Serie 400 e cappa da piano

Vario 200.

Connessione al relativo motore via

cavo dati.

Connessione di AL 400 con un

collettore dell’aria (AD 704 048, AD

704 049).

Prevedere l’areazione nello zoccolo.

Per sostituire il filtro è necessario poter

rimuovere lo zoccolo. Nel caso non

sia presente una griglia di ventilazione

nella parte frontale si raccomanda uno

spazio di 15 cm tra l’uscita aria frontale

del filtro e la parte frontale del mobile.

La stessa distanza è da mantenere

anche tra l’uscita aria laterale del filtro

e la parte laterale del mobile.

Valori di collegamento

Assorbimento totale 180 W.

Cavo di connessione 1,8 m, con spina.

Lunghezza cavo dati 2 m.

Misure in mm