234

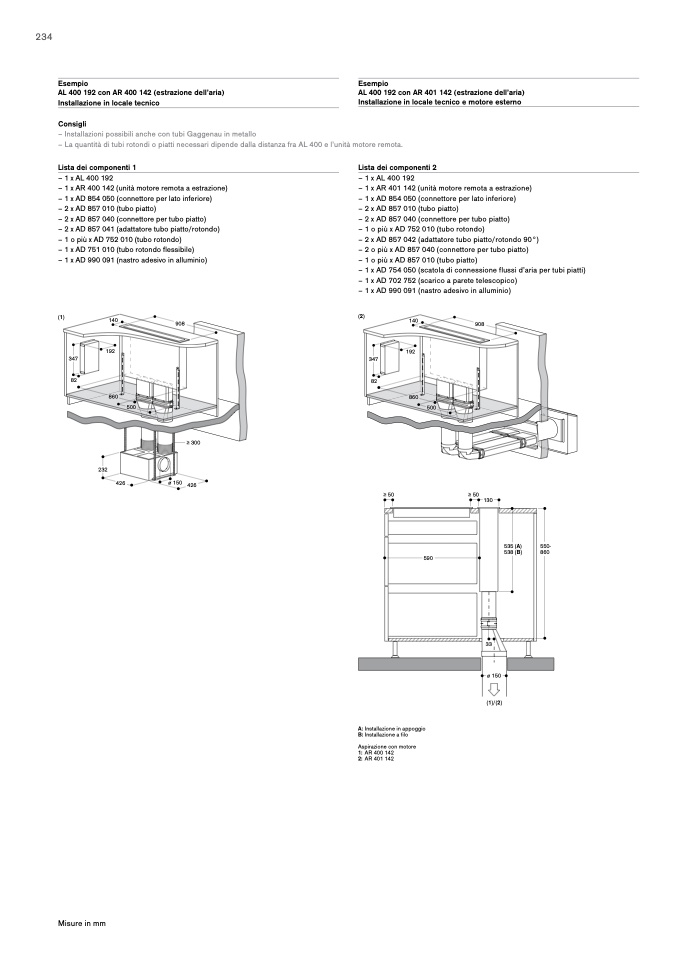
Esempio

AL 400 192 con AR 400 142 (estrazione dell’aria)

Installazione in locale tecnico

(1)

140

908

– La quantità di tubi rotondi o piatti necessari dipende dalla distanza fra AL 400 e l’unità motore remota.

Consigli

≥ 50

– Installazioni possibili anche con tubi Gaggenau in metallo

Lista dei componenti 1

– 1 x AL 400 192

– 1 x AR 400 142 (unità motore remota a estrazione)

– 1 x AD 854 050 (connettore per lato inferiore)

– 2 x AD 857 010 (tubo piatto)

– 2 x AD 857 040 (connettore per tubo piatto)

– 2 x AD 857 041 (adattatore tubo piatto/rotondo)

– 1 o più x AD 752 010 (tubo rotondo)

– 1 x AD 751 010 (tubo rotondo flessibile)

– 1 x AD 990 091 (nastro adesivo in alluminio)

347

(1)

140

192

860

500

426

(1)

140

347

908

≥ 50

(2)

347

82

82

A: Installazione in appoggio

B: Installazione a filo

Aspirazione con motore

1: AR 400 142

2: AR 401 142

590

535 (A)

550-

538 (B)

860

347

82

A: Installazione in appoggio

B: Installazione a filo

Aspirazione con motore

1: AR 400 142

2: AR 401 142

Misure in mm

232

192

860

500

(2)

82

ø 150

140

908

192

860

426

140

192

347

A: Installazione in appoggio

B: Installazione a filo

Aspirazione con motore

1: AR 400 142

2: AR 401 142

232

≥ 300

426

33

ø 150

(1)/(2)

≥ 300

426

860

500

500

908

≥ 50

ø 150

908

Esempio

AL 400 192 con AR 401 142 (estrazione dell’aria)

Installazione in locale tecnico e motore esterno

192

Lista dei componenti 2

– 1 x AL 400 192

– 1

– 1

– 2

– 2

– 1

– 2

– 2

– 1

– 1

– 1

– 1

(2)

347

590 82

82

x AR 401 142 (unità motore remota a estrazione)

x AD 854 050 (connettore per lato inferiore)

860

x AD 857 010 (tubo piatto)

500

x AD 857 040 (connettore per tubo piatto)

o più x AD 752 010 (tubo rotondo)

x AD 857 042 (adattatore tubo piatto/rotondo 90°)

≥ 300

o più x AD 857 040 (connettore per tubo piatto)

o più x AD 857 010 (tubo piatto)

x AD 754 050 (scatola di connessione flussi d’aria per tubi piatti)

232

x AD 702 752 (scarico a parete telescopico)

590

426

ø 150

x AD 990 091 (nastro adesivo in alluminio)

≥ 50

140

130

908

192

535 (A)

550-

538 (B)

860

860

500

33

ø 150

≥ 50

130

(1)/(2)

426