793

≥ 60

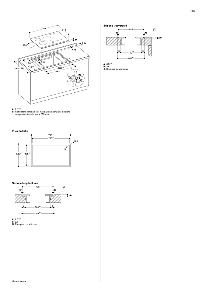
Sezione trasversale

513

780+2

798 ±1

513

14

518±1

(C)

187

(B)

(B)

56

≥ 50

≥ 35

R5

(A)

R3

(A)

1500

14

490+2

≥ 600 (B)

490+2

518±1

A: 6.5

+0.5

B: 2.5

C: Riempire con silicone

A: 6.5

+0.5

B: Consultare il manuale di installazione per piani di lavoro

con profondità inferiore a 600 mm.

Vista dall’alto

518±1 490+2

Sezione longitudinale

798±1

780+2

R5

R3

793

780+2

798±1

(C)

(B)

(B)

(A)

9

9

A: 6.5

+0.5

B: 2.5

C: Riempire con silicone

Misure in mm

90°