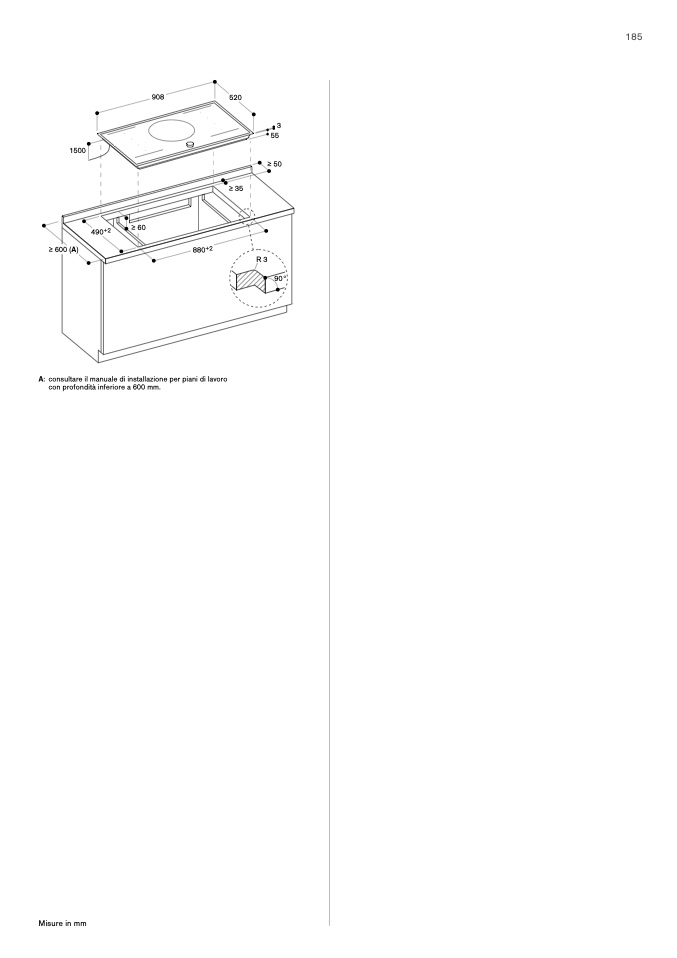
908

520

185

1500

490+2

≥ 60

3

55

≥ 50

≥ 35

R3

90°

≥ 600 (A)

880+2

A: consultare il manuale di installazione per piani di lavoro

con profondità inferiore a 600 mm.

Misure in mm