183

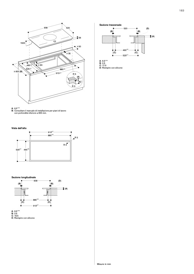
Sezione trasversale

908

520

520

490+2

525±1

(D)

56

≥ 50

≥ 35

R5

(A)

R3

(B)

(C)

(B)

(C)

(A)

1500

≥ 600 (B)

+2

525±1

≥ 60

A: 6.5

+0.5

B: 2.5

490

C: 17.5

D: Riempire con silicone

880+2

913 ±1

A: 6.5

+0.5

B: Consultare il manuale di installazione per piani di lavoro

con profondità inferiore a 600 mm.

Vista dall’alto

525±1 490+2

Sezione longitudinale

913±1

880+2

R5

(B)

(C)

(B)

(C)

(A)

908

880+2

913±1

(D)

R3

A: 6.5

+0.5

B: 2.5

C: 16.5

D: Riempire con silicone

Misure in mm

90°