380

57

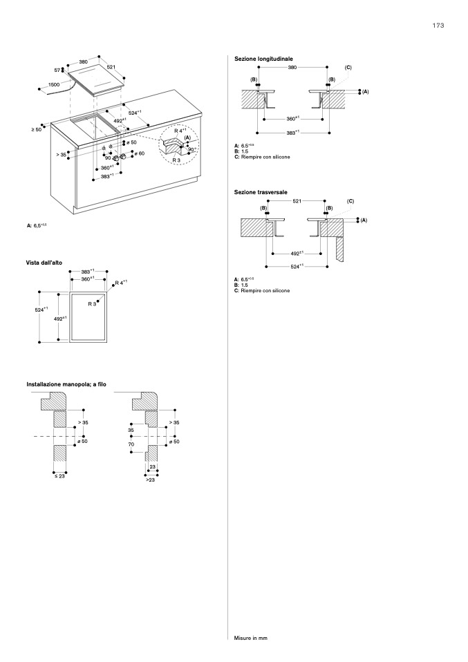
Sezione longitudinale

173

521

492±1

380

360±1

383+1

(C)

1500

> 35

(B)

(B)

(A)

≥ 50

524+1

ø 50

R 4+1

(A)

90

360±1

383+1

ø 60

R3

A: 6.5

+0.5

B: 1.5

C: Riempire con silicone

Sezione trasversale

521

492±1

524+1

(C)

(B)

A: 6.5

+0.5

B: 1.5

C: Riempire con silicone

(B)

A: 6,5

+0,5

(A)

Vista dall’alto

524+1

492±1

383+1

360±1

+1

R 4

R3

Installazione manopola; a filo

> 35

ø 50

35

70

> 35

ø 50

23

≤ 23

>23

Misure in mm

90°