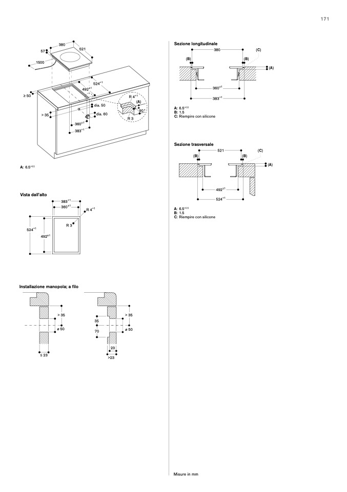
171

380

57

1500

521

524+1

dia. 50

dia. 60

383+1

Sezione longitudinale

380

360±1

383+1

(C)

(B)

(B)

(A)

≥ 50

492±1

> 35

360±1

R 4+1

(A)

R3

A: 6.5

+0.5

B: 1.5

C: Riempire con silicone

Sezione trasversale

(B)

A: 6.5

+0.5

B: 1.5

C: Riempire con silicone

521

492±1

524+1

(C)

(B)

A: 6.5

+0.5

measurements in mm

Vista dall’alto

524+1

492±1

(A)

383+1

360±1

+1

R 4

R3

Installazione manopola; a filo

> 35

ø 50

35

70

> 35

ø 50

23

≤ 23

>23

Misure in mm

90°