591

521

90

208 90

569±1

594+1

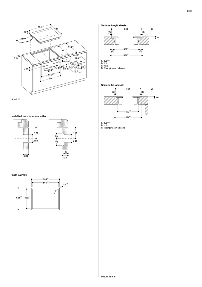
Sezione longitudinale

169

57

1500

≥ 50

> 35

A: 6.5

+0.5

measurements in mm

(B)

A: 6.5

+0.5

B: 2.5

591

569±1

596±1

(D)

(B)

(C)

(A)

492±1

524+1

dia.50

(A)

(C)

R 4+1

dia. 60

R3

C: 13.5

D: Riempire con silicone

Sezione trasversale

(B)

A: 6.5

+0.5

B: 1.5

C: Riempire con silicone

521

492±1

524+1

(C)

(B)

(A)

Installazione manopola; a filo

> 35

ø 50

35

70

> 35

ø 50

≤ 23

Vista dall’alto

524+1 492±1

594+1

569±1

>23

R 4+1

R3

23

Misure in mm

90°