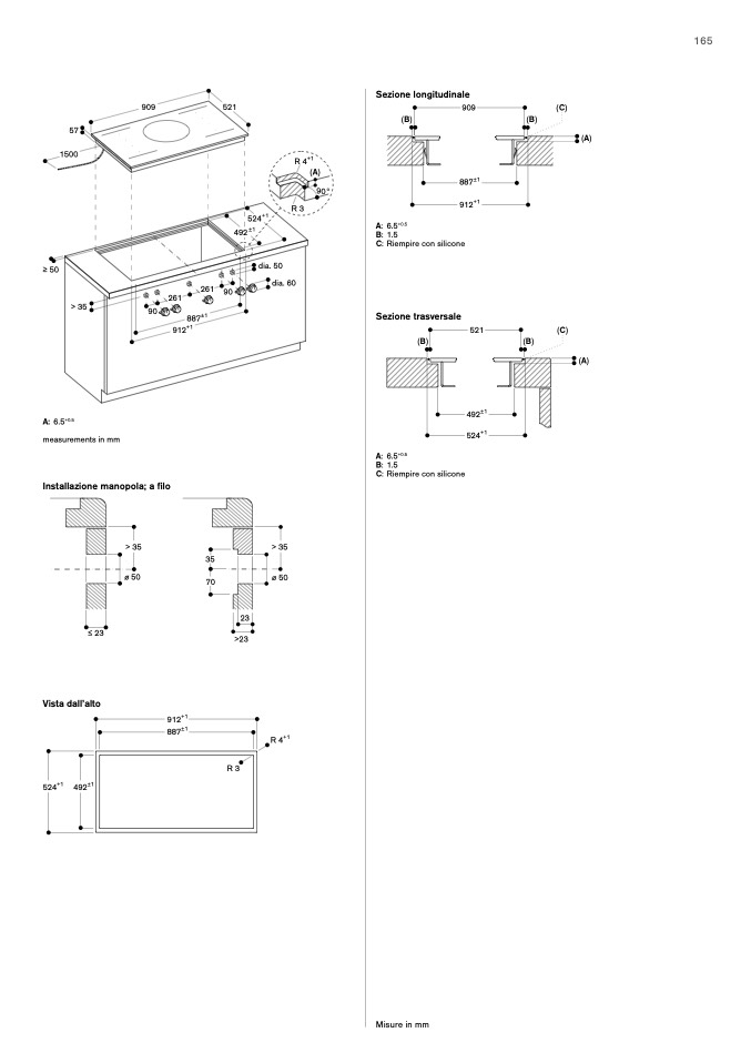
Sezione longitudinale

165

909

521

909

887±1

912+1

(C)

57

1500

≥ 50

> 35

A: 6.5

+0.5

measurements in mm

(B)

(B)

(A)

R 4+1

(A)

R3

492 ±1

dia. 50

dia. 60

524+1

A: 6.5

+0.5

B: 1.5

C: Riempire con silicone

Sezione trasversale

261

261

90

90

887±1

912+1

521

492±1

524+1

(C)

(B)

(B)

(A)

Installazione manopola; a filo

> 35

ø 50

35

70

> 35

ø 50

A: 6.5

+0.5

B: 1.5

C: Riempire con silicone

≤ 23

Vista dall’alto

524+1 492±1

>23

912+1

887±1

R 4+1

R3

23

Misure in mm

90°