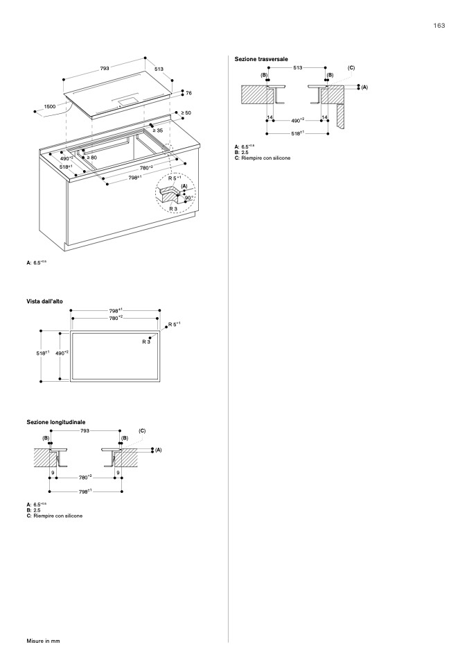
Sezione trasversale

163

793

513

513

490+2

518±1

(C)

76

≥ 50

R 5 +1

(A)

R3

(B)

A: 6.5

+0.5

B: 2.5

C: Riempire con silicone

(B)

14

(A)

1500

14

≥ 35

490+2

518±1

≥ 80

780+2

798±1

A: 6.5

+0.5

measurements in mm

Vista dall’alto

518±1 490+2

Sezione longitudinale

798±1

780+2

R 5+1

R3

793

780+2

798±1

(C)

(B)

(B)

(A)

9

9

A: 6.5

+0.5

B: 2.5

C: Riempire con silicone

Misure in mm

90°