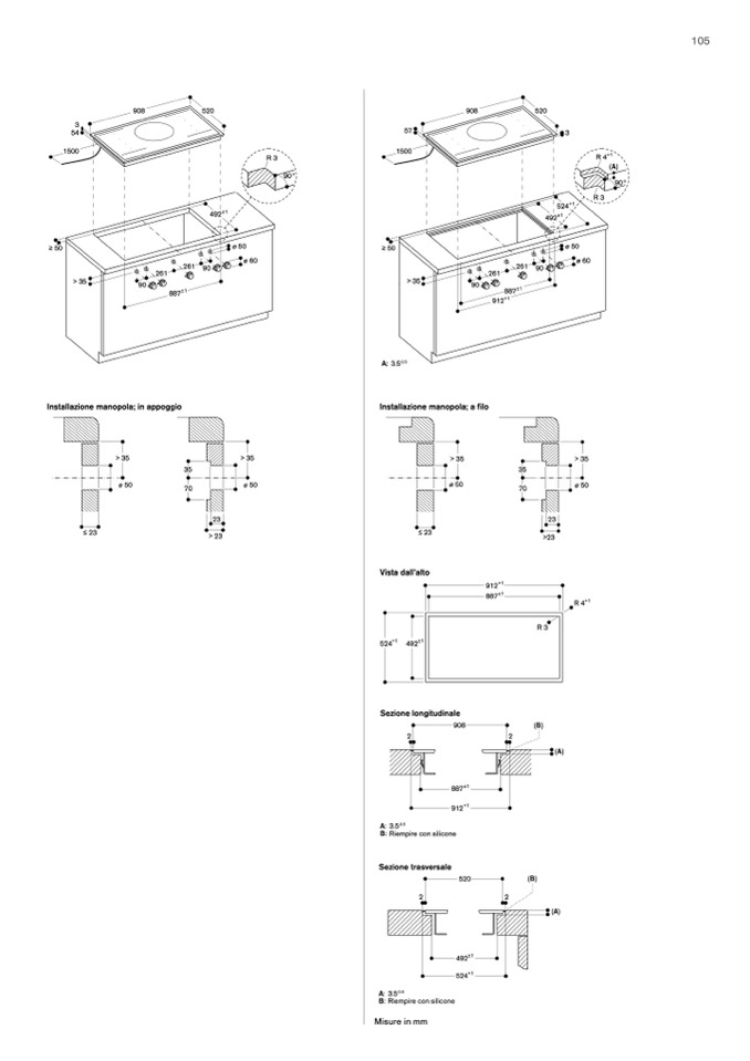
908

520

908

520

57

908

520

3

5

3

4

5

7

3

1500

R 4+1

(A)

R 4+1

1500

≥ 50

> 35

measurements in mm

R 3

1500

> 35

90

> 35

90

(A)

90

261

261

887±1

261

261 887±1

912+1

±1

887

90

492

90

±1

524+1

492±1 +1

524

492±1

ø 50

ø 60

≥ 50

≥ 50

261

261 90

ø 50

ø 50ø 60

ø 60

90°

R 3

R 3

105

90°

90°

Installazione manopola; in appoggio

mA:e3as.5urements in mm

measurements in mm

Installazione manopola; a filo

≤ 23

23

> 23

≤ 23

Vista dall’alto

524+1 492±1

23

>23

> 35

ø 50

35

70

> 35

ø 50

> 35

ø 50

35

70

> 35

ø 50

A: 3.5

-0.5

-0.5

Sezione longitudinale

908

2

2

887±1

912+1

A: 3.5

-0.5

B: Riempire con silicone

Sezione trasversale

520

2

2

492±1

524+1

(A)

(A)

A: 3.5

-0.5

B: Riempire con silicone

Misure in mm

912+1

912+1

887±1

R 4+1

R3

(B)

(B)