8

7

R

i

u

t

i

l

i

z

z

o

6

P

i

c

c

o

l

i

i

m

p

i

a

n

t

i

L

i

s

t

i

n

o

p

r

e

z

z

i

d

e

l

l

'

a

c

q

u

a

d

i

d

e

p

u

r

a

z

i

o

n

e

5

S

e

p

a

r

a

t

o

r

i

4

S

c

a

r

i

c

h

i

3

S

t

a

z

i

o

n

i

d

i

s

o

l

l

e

v

a

m

e

n

t

o

2

S

t

a

z

i

o

n

i

1

D

i

s

p

o

s

i

t

i

v

i

d

i

d

i

s

o

l

l

e

v

a

m

e

n

t

o

c

h

i

u

s

u

r

a

I

n

f

o

r

m

a

z

i

o

n

i

i

b

r

i

d

e

a

n

t

i

-

r

i

s

t

a

g

n

o

p

i

o

v

a

n

a

25

26

27

28

29

27

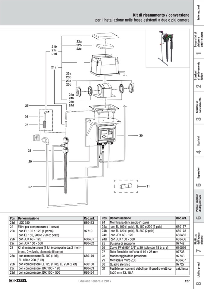
Pos. Denominazione

30

21d

JDK 250

22

Filtro per compressore (1 pezzo)

22a

con EL 100 e 120 (1 pezzo)

con EL 150, 200 e 250 (2 pezzi)

22b

con JDK 60 - 120

680473

24

24a

97719

24b

24c

680461

24d

680462

25

26

27

680179

28

29

680180

30

680463

31

680464

Membrana di ricambio (1 paio)

con EL 100 (1 paio), EL 150 e 200 (2 paia)

con EL 120 (1 paio), EL 250 (2 paia)

con JDK 60 - 120

con JDK 150 - 500

Bussola di supporto

Curva PP di 90° 3/4’’ x 20 (solo con 18 b, c, d)

Tubo flessibile dell'aria di 19 x 25 mm

Monitoraggio della pressione

Mensola a muro ZSB

Quadro elettrico

Fusibile per correnti deboli per il quadro elettrico

5x20 mm T3, 15 A

22c

con JDK 150 - 500

23

Kit di manutenzione (1 kit è composto da: 2 mem-

brane, 2 valvole, elemento filtrante)

23a

con compressore EL 100 (1 kit),

EL 150 e 200 (2 kit)

23b

con compressore EL 120 (1 kit), EL 250 (2 kit)

23c

con compressore JDK 100 - 120

23d

con compressore JDK 150 - 500

21b

21c

21d

21a

22a

22b

22c

23a

23b

23c

23d

24a

24b

24c

24d

Kit di risanamento / conversione

per l'installazione nelle fosse esistenti a due o più camere

Cod.art.

Pos. Denominazione

Cod.art.

680177

680178

680465

680466

97742

680566

97738

97743

680467

97727

a richiesta

Edizione febbraio 2017

127

31