8

7

R

i

u

t

i

l

i

z

z

o

6

P

i

c

c

o

l

i

i

m

p

i

a

n

t

i

L

i

s

t

i

n

o

p

r

e

z

z

i

d

e

l

l

'

a

c

q

u

a

d

i

d

e

p

u

r

a

z

i

o

n

e

5

S

e

p

a

r

a

t

o

r

i

4

S

c

a

r

i

c

h

i

3

S

t

a

z

i

o

n

i

d

i

s

o

l

l

e

v

a

m

e

n

t

o

2

S

t

a

z

i

o

n

i

1

D

i

s

p

o

s

i

t

i

v

i

d

i

d

i

s

o

l

l

e

v

a

m

e

n

t

o

c

h

i

u

s

u

r

a

I

n

f

o

r

m

a

z

i

o

n

i

i

b

r

i

d

e

a

n

t

i

-

r

i

s

t

a

g

n

o

p

i

o

v

a

n

a

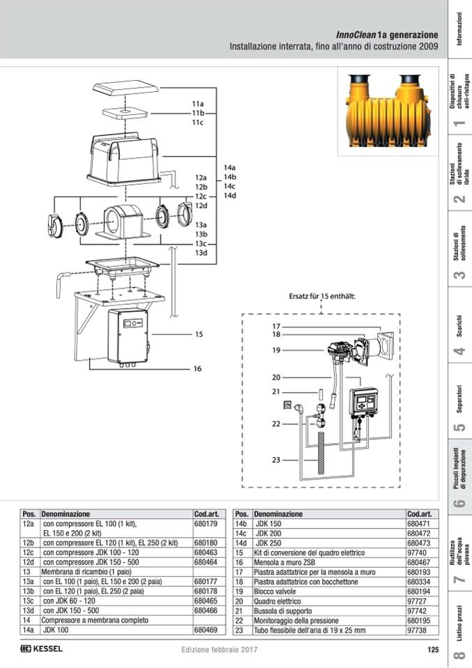
Pos. Denominazione

12a

con compressore EL 100 (1 kit),

EL 150 e 200 (2 kit)

12b

con compressore EL 120 (1 kit), EL 250 (2 kit)

12c

con compressore JDK 100 - 120

12d

con compressore JDK 150 - 500

13

Membrana di ricambio (1 paio)

13a

con EL 100 (1 paio), EL 150 e 200 (2 paia)

13b

con EL 120 (1 paio), EL 250 (2 paia)

13c

con JDK 60 - 120

13d

con JDK 150 - 500

14

Compressore a membrana completo

14a

JDK 100

Cod.art.

Pos. Denominazione

680179

14b

JDK 150

14c

JDK 200

680180

14d

JDK 250

680463

15

Kit di conversione del quadro elettrico

680464

16

Mensola a muro ZSB

17

Piastra adattatrice per la mensola a muro

680177

18

Piastra adattatrice con bocchettone

680178

19

Blocco valvole

680465

20

Quadro elettrico

680466

21

Bussola di supporto

22

Monitoraggio della pressione

680469

23

Tubo flessibile dell'aria di 19 x 25 mm

Cod.art.

680471

680472

680473

97740

680467

680193

680334

680194

97727

97742

680195

97738

InnoClean 1a generazione

Installazione interrata, fino all'anno di costruzione 2009

11a

11b

11c

14a

12a

14b

12b

14c

12c

14d

12d

13a

13b

13c

13d

17

15

18

16

Ersatz für 15 enthält:

19

20

21

22

23

Edizione febbraio 2017

125