8

7

R

i

u

t

i

l

i

z

z

o

6

P

i

c

c

o

l

i

i

m

p

i

a

n

t

i

L

i

s

t

i

n

o

p

r

e

z

z

i

d

e

l

l

'

a

c

q

u

a

d

i

d

e

p

u

r

a

z

i

o

n

e

5

S

e

p

a

r

a

t

o

r

i

4

S

c

a

r

i

c

h

i

3

S

t

a

z

i

o

n

i

d

i

s

o

l

l

e

-

v

a

m

e

n

t

o

2

S

t

a

z

i

o

n

i

1

D

i

s

p

o

s

i

t

i

v

i

d

i

d

i

s

o

l

l

e

v

a

m

e

n

t

o

c

h

i

u

s

u

r

a

I

n

f

o

r

m

a

z

i

o

n

i

i

b

r

i

d

e

a

n

t

i

-

r

i

s

t

a

g

n

o

p

i

o

v

a

n

a

1a

1b

2a

2b

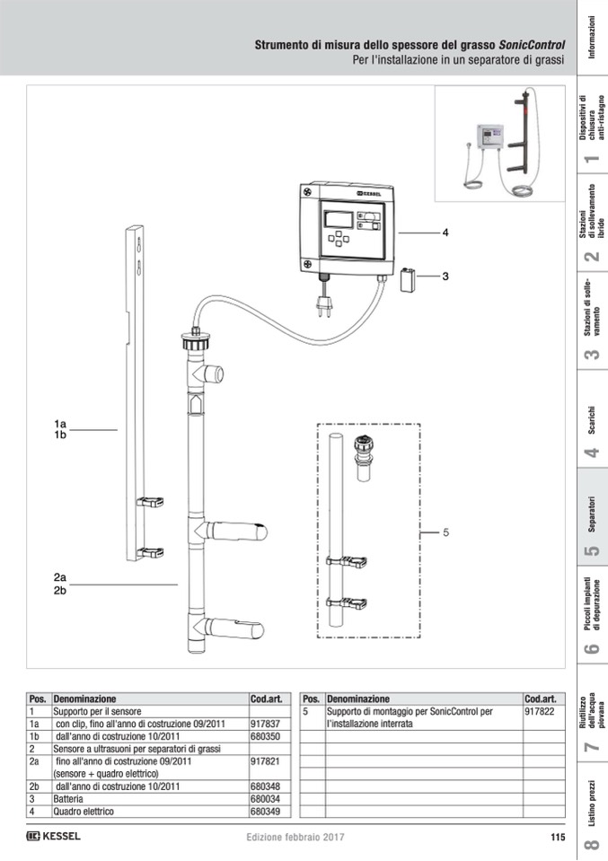
Pos. Denominazione

Cod.art.

917837

680350

917821

680348

680034

680349

Pos. Denominazione

Cod.art.

917822

1

1a

1b

2

2a

2b

3

4

Supporto per il sensore

con clip, fino all'anno di costruzione 09/2011

dall'anno di costruzione 10/2011

Sensore a ultrasuoni per separatori di grassi

fino all'anno di costruzione 09/2011

(sensore + quadro elettrico)

dall'anno di costruzione 10/2011

Batteria

Quadro elettrico

5

Supporto di montaggio per SonicControl per

l’installazione interrata

Strumento di misura dello spessore del grasso SonicControl

Per l'installazione in un separatore di grassi

Edizione febbraio 2017

115

4

3

5