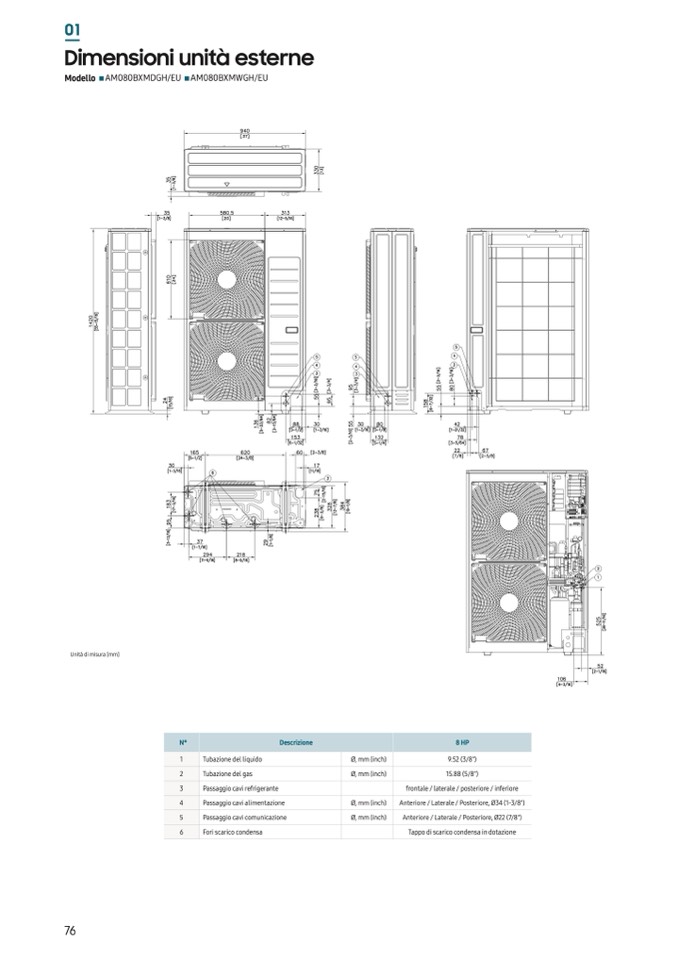
01

Dimensioni u

nitàesterne

Modello AM080BXMDGH/EU AM080BXMWGH/EU

Units : mm [inches]

76

Unità di misura [mm]

��

����

Refrigerant gas pipe

Refrigera

p

Knockout hole for pipe intake

Power wi

Communication wiring conduits

Drain holes

�����������

Φ19.05 (Φ3/4)

Front / Side / Rear / Bottom

Descrizione

8 HP

1

Tubazione del liquido

Ø, mm (inch)

9.52 (3/8")

nt liq2uid

iTpubeazione del gas

Ø, mm (inch)

15.8

Φ8 (95/.58"2) (Φ3/8)

3

Passaggio cavi refrigerante

frontale / laterale / posteriore / inferiore

4

Passaggio cavi alimentazione

Ø, mm (inch)

Anteriore / Laterale / Posteriore, Ø34 (1-3/8")

ring 5cond

uPiatssaggio cavi comunicazione

Ø, mm (inch)

Anteri

Foreo/nLtat/erSalied/ePo/sRteerioarre, ØΦ232 4(7/(8Φ")1-3

6

Fori scarico condensa

Tappo di scarico condensa in dotazione

/8)

Front / Side / Rear Φ22 (Φ7/8)

Connect with the provided drain plug.