44

3. MCU kit

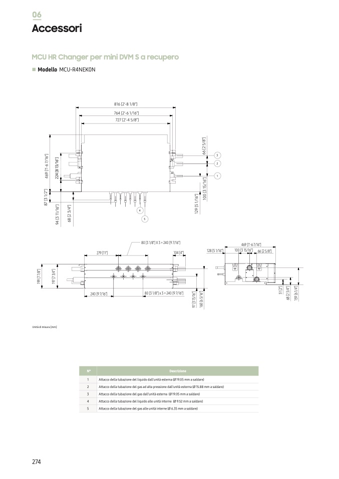
06

Accessori

3.4. Technical drawings

MCU HR Changer per mini DVM S a recupero

MCU-S4NEK3N

Modello MCU-R4NEK0N

Unità di misura [mm]

274

279 [11”]

240 [9 7/16”]

816 [2’-8 1/8”]

764 [2’-6 1/16”]

4

5

80[31/8”]X3=240[97/16”]

104 [4”]

80[31/8”]x3=240[97/16”]

3

2

1

128 [5 1/16”]

469 [1’-6 7/16”]

Unit: mm[inch]

727 [2’-4 5/8”]

2

2

4

[

8

1

3

/

1

6

"

]

100 [3 15/16”] 66 [2 5/8”]

1

9

7

[

7

3

/

4

]

9

7

[

3

1

3

/

1

6

]

1

6

0

[

6

5

/

1

6

]

1

2

9

[

5

1

/

1

6

]

1

0

0

[

3

1

5

/

1

6

]

6

6

[

2

5

/

8

]

5

1

[

2

]

6

8

[

2

3

/

4

]

1

5

9

[

6

1

/

4

]

1

9

9

[

7

7

/

8

]

8

7

[

3

1

/

2

]

9

4

[

3

1

1

/

1

6

]

6

8

[

2

3

/

4

]

4

6

9

[

1

-

6

7

/

1

6

]

Descrizione

1

Attacco della tubazione del liquido dall'unità esterna (Ø 19.05 mm a saldare)

2

Attacco della tubazione del gas ad alta pressione dall'unità esterna (Ø 15.88 mm a saldare)

3

Attacco della tubazione del gas dall'unità esterna (Ø 19.05 mm a saldare)

4

Attacco della tubazione del liquido alle unità interne (Ø 9.52 mm a saldare)

5

Attacco della tubazione del gas alle unità interne (Ø 6.35 mm a saldare)