06

Accessori

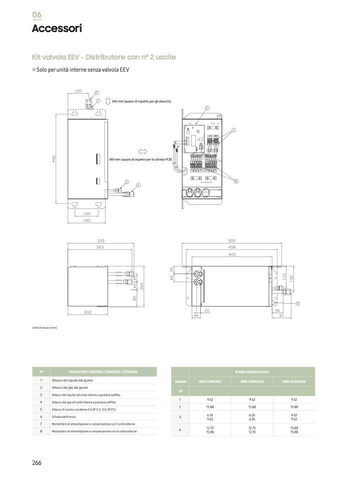
Kit valvola EEV – Distributore con n° 2 uscite

Solo per unità interne senza valvola EEV

Unità di misura [mm]

266

1

2

3

4

5

6

7

8

Modello

Attacco del gas dal giunto

Pos.

Ø della tubazione (mm)

Pos..

1

2

3

Nome

Modelli MXD-E24K132A / E24K200A / E32K200A

Ø della tubazione (mm)

MXD-

MXD-

MXD-

E24K132A E24K200A E32K200A

9.52

Attacco del liquido dal giunto

4 Attacco del gas all’unità interna a parete/a soffitto

Attacco del gas dal giunto

15.88

6.35

15.88

6.35

6.35

9.52

300 mm (spazio di rispetto per gli attacchi)

360 mm (spazio di rispetto per la scheda PCB)

Attacco del liquido all’unità interna a parete/a soffitto

1

9.52

9.52

15.88

9.52

9.52

15.88

15.88

Attacco del liquido dal giunto

2

3

4

Modello

5 Attacco di scarico condensa (I.D. Ø12.5; O.D. Ø 17.5)

MXD-E24K132A

MXD-E24K200A

MXD-E32K200A

9.52

15.88

9.52

9.52

15.88

15.88

ttacco del liquido allunit interna a paretea soffitto

6 Scheda elettronica

1

ttacco del gas allunit interna a paretea soffitto

9.52

9.52

15.88

2

7

Attacco

M

di

o

sc

r

a

s

r

e

ico

tt

c

ie

on

r

d

e

en

d

s

i

a

a

(l.

l

D

im

Ø

e

12

n

.5

t

;

a

O

z

.D

io

. Ø

n

1

e

7.5

e

)

comunicazione con l’unità esterna

8

Scheda elettronica

3

Morsettiere di alimentazione e comunicazione con le unità interne

12.70

12.70

Morsettiere di alimentazione e comunicazione con l'unità esterna

Morsettiere di alimentazione e comunicazione con le unità esterne

4

6.35

12.70

12.70

6.35

9.52

12.70

15.88

6.35

15.88

12.70

15.88