Dimensioni -

Kit UTA

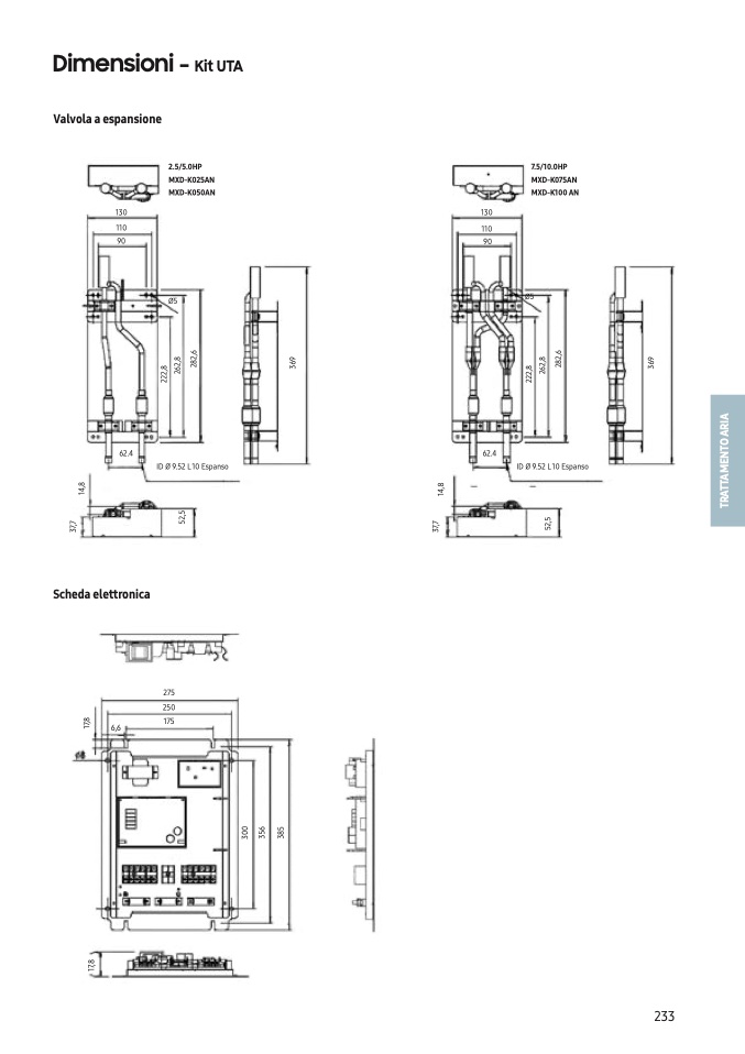
Valvola a espansione

130

130

110

110

90

90

Ø5

62.4

62.4

ID Ø 9.52 L 10 Espanso

Ø5

Scheda elettronica

275

250

175

6,6

ID Ø 9.52 L 10 Espanso

233

2.5/5.0HP

MXD-K025AN

MXD-K050AN

7.5/10.0HP

MXD-K075AN

MXD-K100 AN

1

7

,

8

1

7

,

8

3

7

,

7

1

4

,

8

5

2

,

5

3

0

0

3

5

6

3

8

5

2

2

2

,

8

2

6

2

,

8

2

8

2

,

6

3

6

9

3

7

,

7

5

2

,

5

1

4

,

8

T

R

A

T

T

A

M

E

N

T

O

A

R

I

A

2

2

2

,

8

2

6

2

,

8

2

8

2

,

6

3

6

9