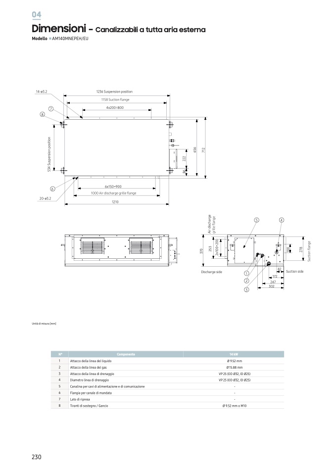
04

Dimensioni -

Canalizzabili a tutta aria esterna

Modello AM140MNEPEH/EU

14-ø3.2

7

8

1236 Suspension position

4x200=800

20-ø3.2

1210

Unità di misura [mm]

230

n

o

i

t

i

s

o

p

n

o

6

5

6

2

1

7

i

s

n

e

p

s

2

u

S

4

3

5

6

8

6x150=900

6

1

2

3

4

5

6

7

8

Componente

Attacco della linea del liquido

Attacco della linea del gas

Attacco della linea di drenaggio

Diametro linea di drenaggio

Canalina per cavi di alimentazione e di comunicazione

Flangia per canale di mandata

Lato di ripresa

Tiranti di sostegno / Gancio

14 kW

5

4

e

g

r

a

h

c

s

i

d

r

i

A

0

2

=

0

7

3

5

2

0

1

0

1

8

7

2

3

x

2

Discharge side

1

2

3

82

Suction side

172

247

302

Ø 9.52 mm

Ø 15.88 mm

VP 25 (OD Ø32, ID Ø25)

VP 25 (OD Ø32, ID Ø25)

-

-

-

Ø 9.52 mm o M10