04

Dimensioni -

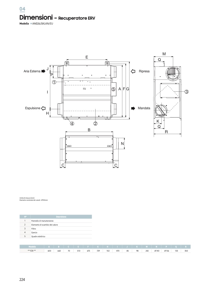
Recuperatore ERV

Modello AN026JSKLKN/EU

Unità di misura [mm]

Diametro nominale dei canali: Ø150mm

Pannello di manutenzione

Elemento di scambio del calore

FIltro

Gancio

1

Descrizione

2

3

4

5

Quadro elettrico

Modello

A

B

600

660

70

510

675

729

102

470

85

98

242

Ø 140

Ø 156

133

350

C

E

F

G

H

I

J

K

M

N

P

Q

R

** 026 **

224