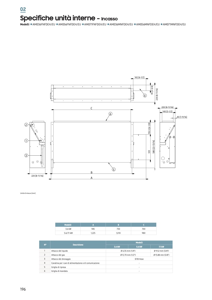
02

Specifiche unità interne -

Incasso

Modelli AM036FNFDEH/EU AM056FNFDEH/EU AM071FNFDEH/EU AM036MNFDEH/EU AM056MNFDEH/EU AM071MNFDEH/EU

4. Dimensional Drawing

Floor Standing

AM036/056/071MNFDEH/EU

2

1

3

220 [8-11/16]

Unità di misura [mm]

Model

AM036∗∗

A

B

730 [28-3/4]

1,010 [39-3/4]

~ 5.6 kW

Ø6.35 [1/4] Flare

Ø 6.35 mm (1/4")

Ø 12.70 mm (1/2")

ID18 Hose

-

-

-

C

700 [27-9/16]

980 [38-9/16]

7.1 kW

Ø9.52 [3/8] Flare

Ø15.88 [5/8] Flare

196

11

No.

1

2

3

4

5

6

Name

Liquid pipe connection

Drain pipe connection

945

1,225

730

1,010

Description

ID 18mm Hose

AM056/071∗∗

945 [37-3/16]

1,225 [48-1/4]

3.6 kW

700

5P.6o/w7.1ekrWwiring

Air inlet grille

Attacco del liquido

Attacco del gas

Attacco del drenaggio

980

-

-

Canalina per i cavi di alimentazione e di comunicazione

Griglia di ripresa

Griglia di mandata

C

165 [6-1/2]

4

Units : mm [inches]

220 [8-11/16]

40 [1-9/16]

Ø 9.52 mm (3/8")

Ø 15.88 mm (5/8")

7

0

[

2

-

3

/

4

]

2

2

0

[

8

-

1

1

/

1

6

]

140 [5-1/2]

6

3

4

2

7

0

5

.

5

[

1

8

-

3

/

4

]

1

5

5

.

5

[

6

-

1

/

8

]

5

8

0

[

2

2

-

1

3

/

1

6

]

B

5

A

Gas pipe connecti

Modelli

on

A

B

Ø12.7 [1 /2] Flare

C

Air outlet louver

Descrizione

Modelli

-

3.6 kW

5.6 kW

7.1 kW

1

2

3

4

5

6