02

Dimensioni unità interne -

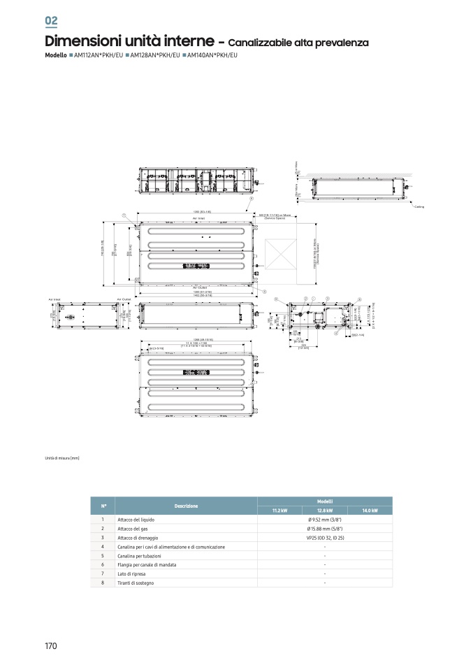
Canalizzabile alta prevalenza

Modello AM112AN*PKH/EU AM128AN*PKH/EU AM140AN*PKH/EU

Unità di misura [mm]

170

Descrizione

1

Attacco del liquido

2

Attacco del gas

3

Attacco di drenaggio

4

Canalina per i cavi di alimentazione e di comunicazione

5

Canalina per tubazioni

6

Flangia per canale di mandata

7

Lato di ripresa

8

Tiranti di sostegno

11.2 kW

Modelli

12.8 kW

Ø 9.52 mm (3/8")

Ø 15.88 mm (5/8")

VP25 (OD 32, ID 25)

-

-

-

-

-

14.0 kW