02

Dimensioni unità interne -

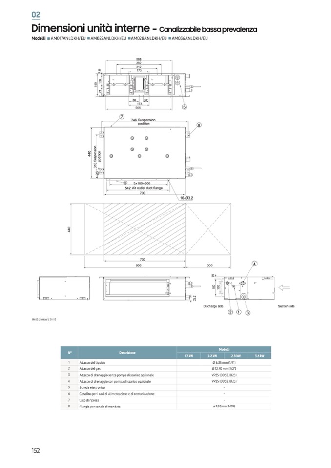
Canalizzabile bassa prevalenza

Modelli AM017ANLDKH/EU AM022ANLDKH/EU AM028ANLDKH/EU AM036ANLDKH/EU

Unità di misura [mm]

152

0

4

9

1

1

9

1

7

n

o

i

s

0

4

n

e

n

o

i

4

p

s

t

i

d

u

o

S

p

6

1

3

52

8

2

-

4

8

.

566

382

312

173

86

173

566

7

0

0

Descrizione

1.7 kW

2.8 kW

3.6 kW

1

Attacco del liquido

2

Attacco del gas

3

Attacco di drenaggio senza pompa di scarico opzionale

4

Attacco di drenaggio con pompa di scarico opzionale

5

Scheda elettronica

6

Canalina per i cavi di alimentazione e di comunicazione

7

Lato di ripresa

8

Flangia per canale di mandata

7

746 Suspension

podition

6

5x100=500

542 Air outlet duct flange

700

8

700

800

500

4

3

5

16-Ø3.2

9

1

0

0

1

1

5

0

2

.

3

2

Discharge side

Modelli

2.2 kW

Ø 6.35 mm (1/4")

Ø 12.70 mm (1/2")

VP25 (OD32, ID25)

VP25 (OD32, ID25)

-

-

-

ø 9.52mm (M10)

Suction side

2

1