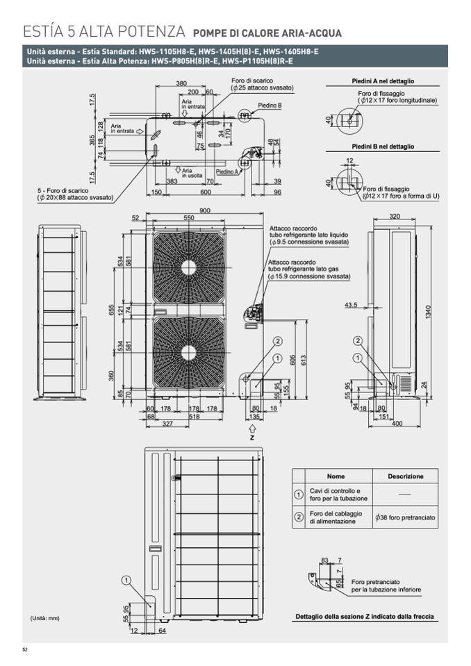
ESTÍA 5 ALTA POTENZA

POMPE DI CALORE ARIA-ACQUA

Unit

à esterna - Estía Standard: HWS-1105H8-E, HWS-1405H(8)-E, HWS-1605H8-E

Unit

à esterna - Estía Alta Potenza: HWS-P805H(8)R-E, HWS-P1105H(8)R-E

52

5

.

7

1

4

7

380

200 60

Aria

in entrata

Foro di scarico

(

25 attacco svasato)

Piedino B

Piedini A nel dettaglio

Foro di fissaggio

( 12

17 foro longitudinale)

Piedini B nel dettaglio

12

Foro di fissaggio

( 12

17 foro a forma di U)

320

0

4

8

Aria

2

1

0

in entrata

5

6

8

6

4

4

3

7

1

8

4

3

1

4

5

1

75

Aria

Piedino A

in uscita

5

.

7

1

383

70

39

0

4

5 - Foro di scarico

150

600

96

( 20

88 attacco svasato)

52

4

3

5

1

8

5

550

900

60 178

68

327

178 178

518

18

80

151

400

1

5

6

Foro pretranciato

per la tubazione inferiore

5

9

(Unità: mm)

5

12

64

Attacco raccordo

tubo refrigerante lato liquido

( 9.5 connessione svasata)

Attacco raccordo

tubo refrigerante lato gas

( 15.9 connessione svasata)

43.5

5

6

1

2

1

4

7

0

4

3

1

2

2

4

3

5

1

8

5

1

1

5

3

0

6

1

6

0

6

3

5

9

5

5

9

4

2

5

8

0

7

5

1

5

80

18

4

9

135

Z

1

2

Nome

Cavi di controllo e

foro per la tubazione

Foro del cablaggio

di alimentazione

83

7

7

Descrizione

38 foro pretranciato

Dettaglio della sezione Z indicato dalla freccia