Esempi di montaggio

Assembly examples

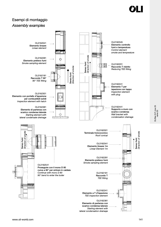
OL0162041

Elemento lineare

Linear element

OL0162281

Elemento prelievo fumi

Smoke sampling element

OL0162181

Raccordo T 90°

90° TEE fitting

OL0162301

Elemento con portello d’ispezione

per combustibili solidi

Inspection element with hatch

OL0162381

Elemento di partenza con

scarico condensa laterale

Starting element with

lateral condensate dreinage

OL0162345

Elemento controllo

fumi e temperatura

Control element

smoke and temperature

OL0162201

Raccordo T ridotto

Reducing TEE fitting

OL0162241

Elemento T per

ispezione con tappo

Inspection element

with plug

OL0162441

Supporto a muro con

scarico condensa

Wall bracket with

condensation drainage

www.oli-world.com

141

OL0162541

Proseguire con il mono D 80

curva a 90° per entrare in caldaia

Continue with mono D 80

90° bend to enter the boiler

OL0162501

Terminale troncoconico

Roof conical

OL0162041

Elemento lineare 1m

Linear Element 1m

OL0162281

Elemento prelievo fumi

Smoke sampling element

OL0162181

Raccordo T

TEE fitting

OL0162241

Elemento a T d’ispezione

TEE inspection element

OL0162381

Elemento di partenza con

scarico condensa laterale

Starting element with

lateral condensation drainage

S

e

n

s

o

f

u

m

i

D

i

r

e

c

t

i

o

n

o

f

s

m

o

k

e

S

e

n

s

o

f

u

m

i

D

i

r

e

c

t

i

o

n

o

f

s

m

o

k

e

S

e

n

s

o

f

u

m

i

D

i

r

e

c

t

i

o

n

o

f

s

m

o

k

e

S

e

n

s

o

f

u

m

i

D

i

r

e

c

t

i

o

n

o

f

s

m

o

k

e

O

L

I

f

l

e

x

D

.

P

.

i

n

o

x

2

5

r

a

m

e

2

5