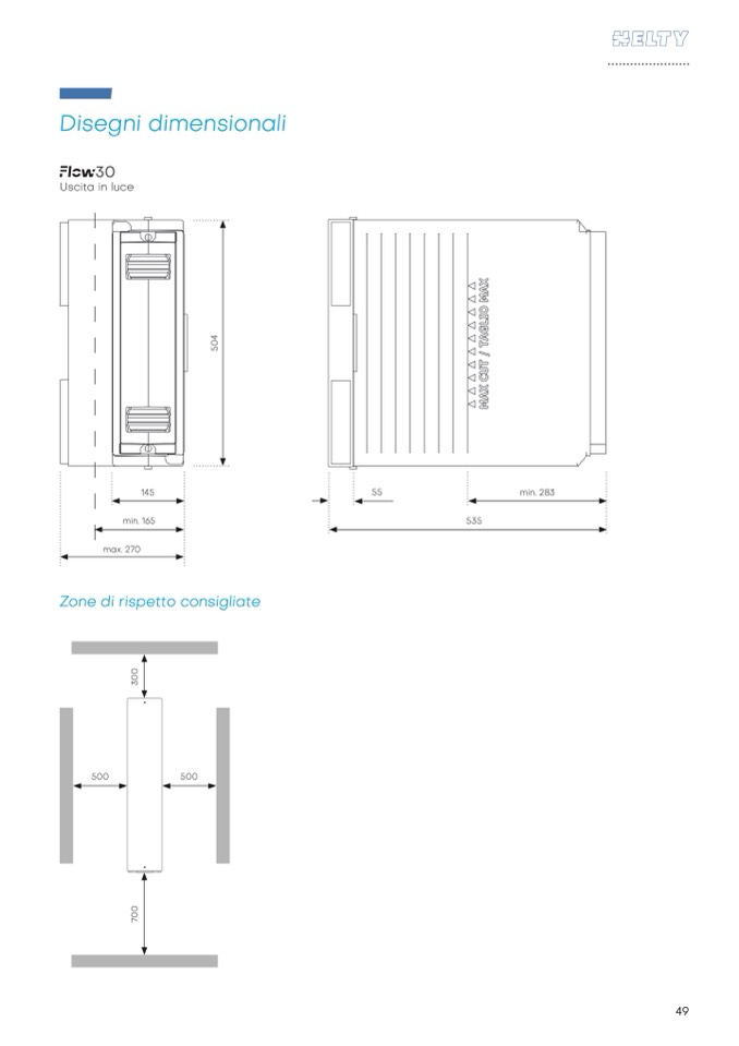
Disegni dimensionali

3

0

Uscita in luc

e

5

0

4

145

55

53

5

min. 28

3

min. 16

5

max. 27

0

Zone di rispetto consigliate

3

0

0

500

50

0

7

0

0

49