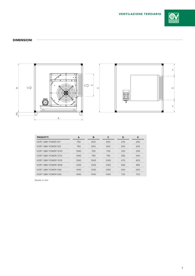
DIMENSIONI

PRODOTTI

A

B

C

D

E

VORT QBK POWER 9/7

VORT QBK POWER 9/9

VORT QBK POWER 10/10

VORT QBK POWER 12/12

VORT QBK POWER 15/15

VORT QBK POWER 18/18

VORT QBK POWER 560

VORT QBK POWER 630

Quote in mm

790

600

600

235

265

790

600

600

300

265

1040

700

700

335

295

1040

790

790

395

340

1040

1040

1040

470

405

1290

1290

1290

560

480

1540

1290

1290

640

640

1540

1540

1540

720

720

VENTILAZIONE TERZIARIO

7