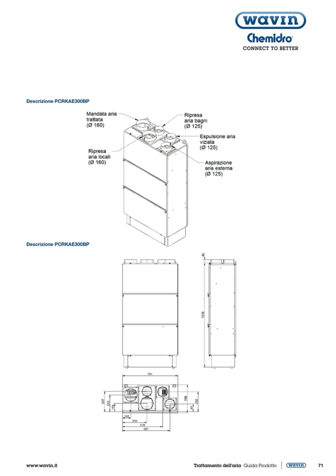
Descrizione PCRKAE300BP

Descrizione PCRKAE300BP

www.wavin.it

Trattamento dell'aria Guida Prodotto

71