DIMENSIONI E ATTACCHI

VICTRIX PRO 180 V2

16

1

5

50

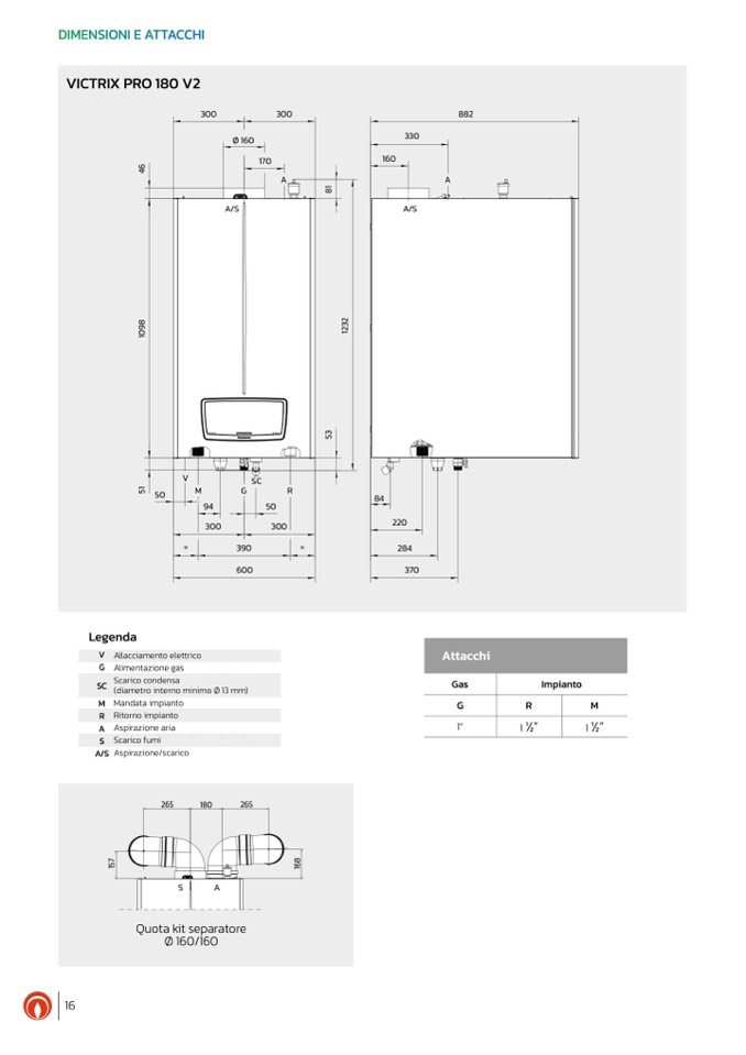
Legenda

V Allacciamento elettrico

G Alimentazione gas

84

220

SC

Scarico condensa

(diametro interno minimo Ø 13 mm)

Attacchi

Gas

Impianto

G

R

M

M Mandata impianto

R Ritorno impianto

A Aspirazione aria

S Scarico fumi

A/S Aspirazione/scarico

265

180

1”

1

1⁄2”

1

1⁄2”

300

300

Ø 160

330

170

160

6

4

A

A

1

8

882

A/S

A/S

8

9

2

3

2

1

0

1

3

5

V

SC

M

G

R

94

50

300

300

=

390

=

284

7

5

1

8

6

1

S

A

Quota kit separatore

Ø 160/160

600

370

265