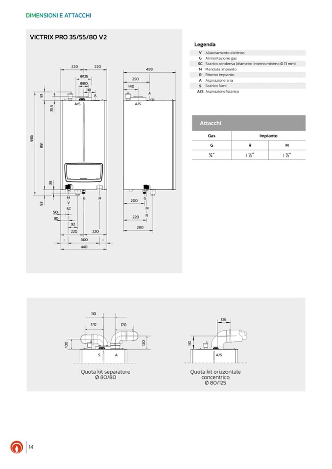
DIMENSIONI E ATTACCHI

VICTRIX PRO 35/55/80 V2

Legenda

V

Allacciamento elettrico

G

Alimentazione gas

SC

Scarico condensa (diametro interno minimo Ø 13 mm)

499

M

Mandata impianto

Ritorno impianto

250

R

A

Aspirazione aria

140

S

Scarico fumi

A

A/S

Aspirazione/scarico

14

1

8

5

,

5

3

5

8

9

1

5

8

8

3

3

5

50

80

A/S

A/S

220

220

110

A

Ø125

Ø80

M

V

G

R

20

0

G

SC

M

220 R

92

220

220

280

300

440

110

170

170

136

0

1

0

2

1

0

1

S

A

A/S

Quota kit separatore

Ø 80/80

Quota kit orizzontale

concentrico

Ø 80/125

Attacchi

Gas

Impianto

G

R

M

3⁄4”

1

1⁄2”

1

1⁄2”