MITSUBISHI ELECTRIC / DIMENSIONALI - COMMERCIALE

Linea Commerciale

SERIE P - UNITÀ INTERNE

Unit : mm

120

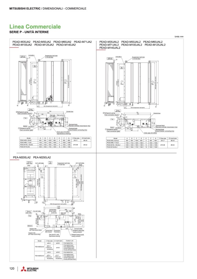
PEAD-M35JA2

PEAD-M50JA2

PEAD-M60JA2

PEAD-M71JA2

PEAD-M60JAL2Unit :Umnmit : mm

P

PU

O

Sid

Air i

H

f

m

PEAD-M35JAL2

PEAD-M50JAL2

Unità: mm

P

PUP

PU

O

PEAPDEPA-EMPDAE3-D5MA-JD3MA-521MJ0A3025PJJAEA2PA2EDPA-EMPDAE5-DMA0-JD5MA-01M2J2A520JPJAEAP2A2EDPAE-PDMAE-6DMA0-DJ6MA-01MJ24A6020JPJAEAP2A2EDAPD-ME-MA71D7J-1AMJ2A721JA2 PEPAEPDAE-DAM-D3M3-5M7J1A3JL5LA2J2LA2LP2EPAEPDAE-DAM-D5M5-0M1J0A50L0LJ2J2ALLP2P2EPAEPDAE--MDAM-6DM60-0JM1JA2A6L50L2JJ2ALL22

PEAPDEA-MPDE1-0MA0D1J-0AM02J1A020PJEPAAE2DAPD-ME-MA12D15-2MJ5AJ12A225JPAE2APDE-MAMD1-4M0J1A420JA2

PEPAEPDAE-DAM-D7M7-1M1J4A70L1LJ2J2ALLP22EAPDE-AMD1-0M0J1A0L0L2J2APLPE2EAPDE--AMD1-2M5J1JA25LJ2AL2

INDOOR UNIT

PEAD-M140JAL2

INDOINODROOUNRITUNIT

2×E-Ø2.9

PEAPDE-AMD1-4M0J1A40LJ2AL2

INDOOR UNIT

PEA-M200LA2 PEA-M250LA2

PEAP-MEA2-0M0L2A002LAP2EAP-MEA2-5M0L2A502LA2

PEA-MI2N0D0OLAO2R UPNEIAT-M250LA2

2 Re

Fl

)

1

INDOINODROOUNRITUNIT

Outlet air

2×E-Ø2.9

Suspension bolt hole

Outlet air

side view

15

Suspension bolt hole

4-14×30 Slot

SuspensSiounspbeonltshioonlebolt hole

4-14×304S-1lo4t×30 Slot

2×E-Ø2.29×E-Ø2.9

Outlet airOutlet air

side viewside vie1w5

15

2 Refrigerant piping

Piping Piping32

700

Control box

Control bCoxntrol box

Flare connectiosnide(livqieuwids)ide view

238

732

732

Drain pipe

Drain pump

2 Refrig2erRanetfrpigipeirnagnt piping

Flare coFnlnaerecticoonn(nlieqcutido)n (liquid)

32 10

238

238

700

(O.D.Ø32)

Top

Top

10

10

Top

Drain pipDeraiDnrpaiipnepumDprain pump

(O.D.Ø32(O).D.Ø32)

Bottom 2×2-Ø2.9

1 Refrigerant piping

Bottom B2o×t2to-mØ2.29×2-Ø2.9

Flare connection (gas)

136

1 Refrig1erRanetfrpigipeirnagnt piping

Flare coFnlnaerecticoonn(ngeacsti)on (gas)

Model

Terminal block

(Remote controller transmission line)

10

Piping

side view

10

57

643 (Suspension bolt pitch)

57 643 (Susp6e4n3s(iSonusbpoeltnpsitocnh)bolt pitch)

732

32

700

57

Top

view

t

Air

outlet

Air

inlet

136

67

356

67136

356

TerminaTl ebrlomciknal block

Terminal block

A

B

C

D

E

F

G

1 Gas pipe

2 Liquid pipe

67

356

(Remote(Rceomntorotellecrotnratrnosllmeristsraionnsmlinises)ion line

(Indoor/Outdoor connecting line)

Air

inlet

Drain pipe (O.D.TØe3r2m)inaTl ebrlomciknal block

(Spontaneous d(Irnadinoionrg/O()Inudtdooor/rOcuotndnoeocrticnognlnineec)ting line)

Drain pipDera(iOn.pDi.pØe3(2O).D.Ø32)

(Spontan(Sepoounstadnraeionuinsgd) raining)

d pipe

5

2

B

(

S

u

s

p

e

n

s

i

o

n

b

o

l

t

p

i

t

c

h

)

C

Air

inlet

Top

view

Top

view

Air

outle

Air

outlet

10

7

8

2

0

2

0

3

0

1

0

0

5

7

1

0

0

(

E

-

1

)

×

1

0

0

(

=

F

)

D

(

D

(

u

E

c

-

t

1

)

)

×

1

0

0

(

=

F

)

D

(

D

u

c

t

)

(

E

-

1

)

×

1

0

0

(

=

F

)

1

0

0

1

7

8

(

D

u

c

t

)

2

3

1

0

0

1

7

8

(

D

u

c

t

)

4

0

2

3

3

3

1

0

0

1

2

2

4

0

1

7

8

(

D

u

c

t

)

3

3

2

3

1

0

0

4

0

1

2

2

3

3

1

2

2

5

8

5

8

7

5

8

8

2

0

3

0

5

7

7

8

3

0

5

7

D

(

D

u

c

t

)

2

1

7

4

1

2

5

0

2

1

7

4

1

A

2

1

7

2

5

0

4

1

2

3

B

(

S

u

s

p

e

n

s

i

o

n

b

o

l

t

p

i

t

c

h

)

A

2

5

0

2

3

A

2

3

B

(

S

u

s

p

e

n

s

i

o

n

b

o

l

t

p

i

t

c

h

)

C

C

4

0

4

0

4

0

PEAD-M35, 50JA2

Model Model

90

A

0

95

AB

4 10

BC

00

CD

86

0

9

DE

80

EF

0

85

GF

8

Ø12.7

1GGas p1ipeGas

Ø6.35

pi2peLiquid2piLpiequi

PEAD-M60, 71JA2

PEAD-MP3E5A,D50-MJA325,50JA2

11

900

00 11

90504

54 12

1905040

00 10

180600

60

8690

1 1

10

8900

00 10

80508

58

85Ø812.7 Ø12 .7 Ø6.35 Ø6.3

PEAD-M100, 125JA2

PEAD-MP6E0A,D71-MJA620,71JA2

14

1100

00 14

110504

54 15

1125040

00 13

120060

60

1

101610

4

13

110100

00 13

100508

58

Ø15.88

1058

58

13Ø5815.88 Ø15.

1558

Ø9.52

88 Ø9.52 Ø9.5

PEAD-M140JA2

PEAD-MP1E0A0D, 1-M251J0A02, 125JA2

16

1400

00 16

140504

54 17

1455040

00 15

153060

60

1

131640

6

15

113400

00 15

130508

PEAD-MP1E4A0DJA-M2140JA2

1600

160504

1675040

175060

15160

115600

150508

2

4

side view

15

2×E-Ø2.29×E-Ø2.9

4-14×30 Slot

SuspensSiounspbeonltshioonlebolt hole

4-14×304S-1lo4t×30 Slot

Outlet airOutlet air

side viewside view

15

15

To

vie

2 Refrigerant piping

Piping Piping32

Flare connectiosnide(livqieuwids)ide view

frig2erRanetfrpigipeirnagnt piping

32

are coFnlnaerecticoonn(nlieqcutido)n (liquid)

Top

32 10

10

732

700

732

700

D

Top

Top

Bottom 2×2-Ø2.9

1 Refrigerant piping

67

356

B

Bottom B2o×tt2o-mØ2.29×2-Ø2.9

Flare connection (gas)

136

Refrig1erRanetfrpigipeirnagnt piping

Flare coFnlnaerecticoonn(ngeacsti)on (gas)

67

356

(Remote(Rceomntorotellecrotnratrnosllmeristsraionnsmlinises)ion line)

(Indoor/Outdoor connecting line)

PEAD

PEAD

PEAD

PEAD

PE

PE

PE

PE

10

Piping

side view

57

10

57

643 (Suspension bolt pitch)

57 643 (Susp6e4n3s(iSonusbpoeltnpsitocnh)bolt pitch)

732

700

Air

Control box

Control bCoxntrol box

Terminal block

(Remote controller transmission line)

Model

A

C

E

F

G

1 Gas pipe

2 Liquid pipe

Air

o

u

t

inlet

10

136

67136

TerminaTl ebrlomciknal block

Terminal block

356

Drain pipe (O.DT.Øer3m2i)naTl ebrlomciknal block

(Indoor/O(Inudtdooor/rOcuotndnoeocrticnognlnineec)ting line)

Drain pipDera(iOn.pDi.pØe3(2O).D.Ø32)

Air

inlet

C

2

0

2

0

D

(

D

u

c

t

)

(

E

-

1

)

×

1

0

0

(

=

F

)

Air

inle

p

w

Top

view

Air

outlet

tlet

Air

outlet

10

Top

view

1

0

0

(

E

-

1

)

×

1

0

0

(

=

F

)

2

4

2

4

1

7

8

(

D

u

c

t

)

2

3

3

0

7

8

1

0

0

4

0

3

3

1

7

8

(

D

u

c

t

)

2

3

5

7

1

7

8

(

D

u

c

t

)

1

0

0

1

2

2

3

0

7

8

1

0

0

1

0

0

3

3

2

3

4

0

7

8

2

0

4

0

1

2

2

3

0

5

7

1

0

0

3

3

1

2

2

5

7

D

(

D

u

c

t

)

(

E

-

1

)

×

1

0

0

(

=

F

)

D

(

D

u

c

t

)

B

(

S

u

s

p

e

n

s

i

o

n

b

o

l

t

p

i

t

c

h

)

A

B

(

S

u

s

p

e

n

s

i

o

n

b

o

l

t

p

i

t

c

h

)

C

A

B

(

S

u

s

p

e

n

s

i

o

n

b

o

l

t

C

p

i

t

c

h

)

A

2

1

7

2

5

0

2

1

7

2

1

7

2

5

0

2

5

0

2

3

2

3

2

3

AD-M35, 50JAL2

90

Model Model

A

0

AB

95 4

BC

10 00

CD

86 0

DE

9

EF

80 0

GF

85 8

1GGa

Ø12.7

s p1ipeGas pi2peLiq

Ø6.35

uid2piLpiequidpipe

AD-M60, 71JAL2

11

-MP3E5A,D50-MJA3L52,50JAL2

900

00 11

90504

54 12

1905040

00 10

180600

60

8690

1 1

10

8900

00 10

80508

58

858Ø1 2.7 Ø12.7 Ø 6.35 Ø6.35

AD-M100, 125JAL2

14

-MP6E0A,D71-MJA6L02,71JAL2 1100

00 14

110504

54 15

1125040

00 13

120060

60

1

101610

4

13

110100

00 13

100508

58

1058

Ø15.88

.88 Ø15.88 Ø

Ø9.52

9.52 Ø9.52

AD-M140JAL2

16

-MP1E0A0D,1-M251J0A0L,2125JAL21400

00 16

140504

54 17

1455040

00 15

153060

60

1

131640

6

15

113400

00 15

130508

58

135Ø815

-MP1E4A0DJA-ML2140JAL2

1600

160504

1675040

175060

15160

115600

150508

1558

INDOINODROOUNRITUNIT

Inlet air

side view

Top

2x11-ø3 holes

view

Suspension bolt hole

4-14x30 Slot

SuspensSiounspbeonltsihoonlebolt hole

4-14x304S-1lo4tx30 Slot

2x11-ø3 holes

holes

15

29

Top

side viewside vie2wx11-ø32hxo1l1e-sø3 holes view

Top

view

InletFailitreIrnlet air

30

10

30

3010

2x4-ø3 holes

10

Piping Pip2inxg4-ø3 h2oxl4e-sø3 holes

side viewsTidoep view

10

Top

Top

Bottom

15

Piping

side view

29

15

Knockout hole

2x4-ø3 holes

Refrigerant piping (Gas)

2xb4ra-zøin3g hc2oxnl4en-esøct3ionholes

Bottom Bottom

(ø27 Power source wiring)

Knockout Khonloeckout hole

Terminal block

Terminal block

Air

inlet

Air

inlet

o

60

Air

inlet

10

1004 (Suspension bolt pitch)

1120

424

15

1

(Transmission)

424

(ø27Powe(rø2so7uPrcoewwerirsinogu)rcewirinTge)rminalbTloecrmkinalTbelromciknalbloTcekrminalblock

424

Knockout hole

(MA remocon)

(ø27 Power source wiring)

Knockout Khonloeckout hole

(ø27 Powe(rø2so7uPrcoewwerirsinogu)rce wiring)

PE

Drain pipe (0. D. ø32)

(MA remoc(MonA) remo(Tcroans)missio(Tnr)ansmission)

Drain pipeD(0ra. iDn.pøip3e2)(0. D. ø32)

(Spontane(oSupsodnrtaineinogu)s draining)

1 Refrigera1nRtepfipriginegra(Gntaps)iping(Gas)

2 Refrigerant piping (Liquid)

brazing cobnrnaezcintigonconnection

Refrigera2 nRt epfipriginegra(Lnitqpuiipdi)ng (Liquid)

brazing cobnrnaezcintigonconnection

A3

PE

(Spontaneous draining)

brazing connection

2

60

A3

2x11-ø32hxo1l

Air

outlet

Air

Air

utlet

outlet

1

0

x

1

0

0

(

=

1

0

0

0

)

1

1

0

0

(

D

u

c

t

)

5

0

1

0

0

1

0

x

1

0

0

(

=

1

0

0

0

)

4

8

1

3

2

4

1

(

S

0

u

x

s

1

p

0

e

0

n

(

s

=

i

1

o

0

n

0

b

0

o

)

l

t

p

i

t

c

h

)

5

0

2

3

1

2

5

0

1

1

0

0

(

D

u

c

t

)

1

0

0

5

0

6

0

1

2

5

0

4

8

1e-sø

1

3

2

4

(

S

u

s

p

e

n

s

i

o

n

b

o

l

t

p

i

t

c

h

)

3

1

3

7

0

Filter Filter

(

D

u

c

t

)

4

8

.

5

1

1

0

0

1004 (Su1s0p0e4n(sSiounspbeonltsipointcbho) lt pitch) 60

1066

Terminal blo1c1k20

1120

489

(Power supp1ly0)66

1066

TerminalCbTloencrtmkroinlbalobxlock

Dra4in8h9ole

(Power sup(Ppolyw)er supply)

(Option8)0

80

4

16

hole

16829

89

880 168

15

10

Control boCxontrol boxDrain holeDrain

(Option) (Opti

15

1

0

0

2

7

0

2

7

0

(

D

u

c

t

)

2

5

(

=

3

0

0

)

1

2

0

0

3

x

1

0

0

(

=

3

0

0

)

3

4

0

(

D

u

c

t

)

4

4

1

4

7

0

on)

2

7

0

3

x

1

0

0

3

4

0

3

x

1

4

0

7

0

4

4

3

x

1

0

0

(

=

3

0

0

)

6

0

4

2

0

(

D

u

c

t

)

3

0

4

2

0

(

D

u

c

t

)

1

4

3

3

x

1

0

0

(

=

3

0

0

)

6

0

4

2

0

(

D

u

c

t

)

1

0

0

3

x

1

0

0

(

=

3

0

0

)

6

0

1

0

0

3

0

1

0

0

1

4

3

1

4

3

3

0

2

2

2

2

2

2

1

1

0

1

1

0

1

1

0

1

0

x

1

0

0

(

=

1

0

0

0

)

1

1

0

0

(

D

u

c

t

)

1

0

0

5

0

4

8

.

5

1

0

x

1

0

0

(

=

1

0

0

0

)

1

1

0

0

(

D

u

c

t

)

1

0

x

1

0

0

(

=

1

0

0

0

)

1

0

0

4

8

.

5

5

0

1

0

0

5

0

1

2

0

3

4

0

(

D

u

c

t

)

2

5

0

(

=

3

0

0

)

2

0

2

5

4

4

1

4

7

0

1

1

0

1

0

3

(

7

D

0

u

c

t

)

1

2

5

0

1

3

2

4

(

S

u

s

p

e

n

s

i

o

n

b

o

l

t

p

i

t

c

h

)

1

3

7

0

4

8

6

0

6

0

2

3

2

3

1

0

0

Model

1 Gas pipe

2 Liquid pipe

Outdoor unit

Model Model 1

PEA-M200LA2

A-M2P0E0LAA-M2200L

ø22.2

Gaspi1peGas2pi

ø9.52

Lpiequid2piLpiequid pi

PUZ-M200YDA

peOutdoorOuuntidt oor unit

Ø25.4

ø22.2 ø22.2

Reducer

Ø25A.4cceØs2s5o.r4y

A2

ReducerReduce

ø9.52 ø9.52PU

ø9.52

PU

PU

rø9.52 ø9.52

PUZ-M200YKA2

ZP-MU2ZP0-ZU0MYZD2-M0A02Y00KYAD2A

ZP-MU2HP0ZU0-YPZK2-M0A02Y0K0YAK3A2

ZP-ZUMHP2ZU0-Z0ZYR-ZKPMA220200YYKKAA32

PEA-M250LA2

A-M2P5E0LAA-M2250L

Acceøs2so2Ar.2yccess ory ø9.52

PU

PU

HZ-PP2U00HYZK-PA2300YKA3

PUZ-M250YDA

HZ-ZPRUPH20Z0-ZYRKPA2300YK

ø22ø.25.4ø22.2

Reducer

ø25.A4cceøs2s5o.4ry

A2

ReducerReduce

AccessoAryccess

ø9.ø5122.7ø9.52PU

Reducer

PU

ø12.A7cceøs1s2o.7ry

PU

RreducerReducer

PU

AorcycessoAryccesso

PU

PUZ-M250YKA2

Z-M2P5U0YZD-MA250YDA

PUZ-ZM250YKA2

ZP-MU2HP5ZU0-YPZK2-M5A02Y5K0YAK3A2

ZP-ZUMHP2ZU5-Z0ZYR-ZKPMA2252500YYKKAA32

HZ-PP2U50HYZK-PA2350YKA3

ry

HZ-ZPRUPH25Z0-ZYRKPA2350YK

6

3

0

6

3

0

Z

O

U

S

A

e

o

Z

Z

O

U

3

2

0