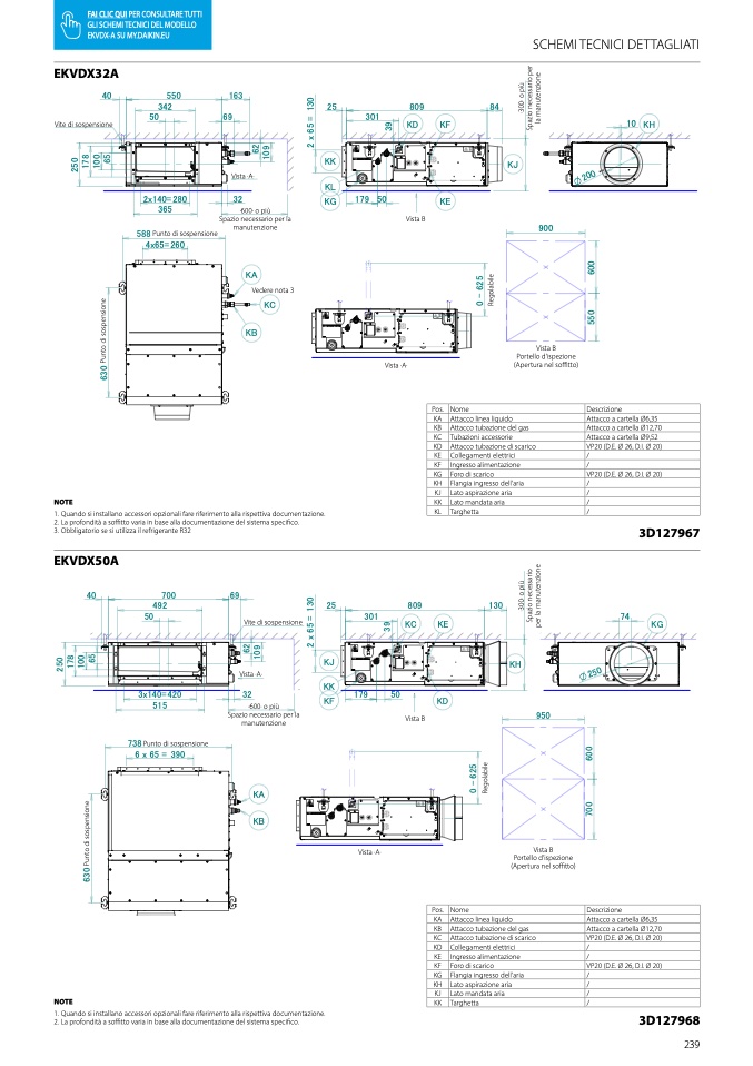
EKVDX32A

40

Vite di sospensione

550

163

588 Punto di sospensione

900

Vista B

Portello d'ispezione

(Apertura nel so

ffitto)

EKVDX50A

40

700

69

3D127967

74

KG

738 Punto di sospensione

32

·600· o pi

Spazio necessario per la

manutenzione

KA

Vedere nota 3

KC

KB

KE

NOTE

KK

1. Quando si installano accessori opzionali fare riferimento alla rispettiva documentazione.

2. La profondit

à a soffitto varia in base alla documentazione del sistema specifico.

3. Obbligatorio se si utilizza il refrigerante R32

KL

Vite di sospensione

a ·A·

NOTE

KK

1. Quando si installano accessori opzionali fare riferimento alla rispettiva documentazione.

2. La profondit

à a soffitto varia in base alla documentazione del sistema specifico.

25

KL

KG

17

9

50

809

84

25

809

130

KK

32

K

F

17

9

5

0

KD

·600· o pi

Spazio necessario per la

manutenzione

KA

KB

Vista B

950

Vista B

Portello d'ispezione

(Apertura nel soffitto)

Vista ·A·

Vista ·A·

Pos.

KA

KB

KC

KD

KE

KF

KG

KH

KJ

Nome

Attacco linea liquido

Attacco tubazione del gas

Tubazioni accessorie

Attacco tubazione di scarico

Collegamenti elettrici

Ingresso alimentazione

Foro di scarico

Flangia ingresso dell'aria

Lato aspirazione aria

Lato mandata aria

Targhetta

Descrizione

Attacco a cartella Ø6,35

Attacco a cartella Ø12,70

Attacco a cartella Ø9,52

VP20 (D.E. Ø 26, D.I. Ø 20)

/

/

VP20 (D.E. Ø 26, D.I. Ø 20)

/

/

/

/

Pos.

KA

KB

KC

KD

KE

KF

KG

KH

KJ

Nome

Attacco linea liquido

Attacco tubazione del gas

Attacco tubazione di scarico

Collegamenti elettrici

Ingresso alimentazione

Foro di scarico

Flangia ingresso dell'aria

Lato aspirazione aria

Lato mandata aria

Targhetta

Descrizione

Attacco a cartella Ø6,35

Attacco a cartella Ø12,70

VP20 (D.E. Ø 26, D.I. Ø 20)

/

/

VP20 (D.E. Ø 26, D.I. Ø 20)

/

/

/

/

3D127968

SCHEMI TECNICI DETTAGLIATI

10 KH

239

342

69

50

1

7

8

1

0

0

6

5

6

2

Vista ·A·

2x140= 280

365

O

2

00

301

KD

KF

3

9

KJ

KK

ViVeiswta·BB·

4x65= 260

492

50

1

7

8

1

0

0

6

5

6

2

Vist

3x140= 420

515

O

2

50

301

KC

KE

3

9

KH

KJ

6x65= 390

6

3

0

P

u

n

t

o

d

i

s

o

s

p

e

n

s

i

o

n

e

7

0

0

6

0

0

5

5

0

6

0

0

0

-

6

2

5

0

-

6

2

5

R

e

g

o

l

a

b

i

l

e

R

e

g

o

l

a

b

i

l

e

2

5

0

1

0

9

2

x

6

5

=

1

3

0

1

0

9

2

x

6

5

=

1

3

0

·

3

0

0

·

o

p

i

u

̀

S

p

a

z

i

o

n

e

c

e

s

s

a

r

i

o

p

e

r

l

a

m

a

n

u

t

e

n

z

i

o

n

e

·

3

0

0

·

o

p

i

u

̀

S

p

a

z

i

o

n

e

c

e

s

s

a

r

i

o

p

e

r

l

a

m

a

n

u

t

e

n

z

i

o

n

e

6

3

0

P

u

n

t

o

d

i

s

o

s

p

e

n

s

i

o

n

e

2

5

0

FAI CLIC QUI PER CONSULTARE TUTTI

GLI SCHEMI TECNICI DEL MODELLO

EKVDX-A SU MY.DAIKIN.EU