VAM150FC9

NOTE

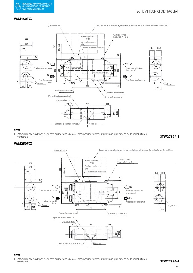
1. Assicurarsi che sia disponibile il foro di ispezione (450x450 mm) per ispezionare i

filtri dell'aria, gli elementi dello scambiatore e i

ventilatori.

3TW27874-1

VAM250FC9

285

269

149

8

120

104

Quadro elettrico

SA

Spazio per la manutenzione degli elementi di scambio termico, dei

filtri dell'aria e dei ventilatori

Gancio a soffitto

Foro ovale 4-14x40

OA

Aria fresca dall'esterno

(aria esterna)

EA

Aria di scarico all’esterno

Ventola di scarico aria

145

NOTE

Aria immessa nel locale

RA

Aria di ripresa dal

locale

Piastra di smorzamento

(Coperchio di manutenzione)

(Quadro elettrico)

145

Elemento di scambio termico

Tenuta

Tenuta

1. Assicurarsi che sia disponibile il foro di ispezione (450x450 mm) per ispezionare i

filtri dell'aria, gli elementi dello scambiatore e i

ventilatori.

3TW27884-1

Foro di ispezione

Ø 450

Ventola immissione

aria

Coperchio di manutenzione

104

120.3

149

718

760

Filtri aria

SCHEMI TECNICI DETTAGLIATI

231

285

269

149

8

120

Foro di ispezione

Ø 450

Ventola immissione

aria

Coperchio di manutenzione

Gancio a soffitto

Foro ovale 4-14x40

SA

Aria immessa nel locale

RA

Aria di ripresa dal

OA

Aria fresca dall'esterno

(aria esterna)

EA

Aria di scarico all’esterno

104 120.3

149

Tenuta

104

locale

Tenuta

Quadro elettrico

Spazio per la manutenzione degli elementi di scambio termico, dei filtri dell'aria e dei ventilatori

Piastra di smorzamento

718

760

Ventola di scarico aria

Distanziale estrazione

145

(Coperchio di manutenzione)

(Quadro elettrico)

145

Elemento di scambio termico

Filtri aria

Ø

9

7

Ø

2

0

0

2

0

1

6

4

1

2

4

2

8

8

5

6

0

2

0

8

5

0

9

2

8

8

1

2

4

1

6

4

6

0

0

1

2

0

~

2

5

0

6

7

Ø

9

7

Ø

2

0

0

2

0

1

6

4

1

2

4

2

8

8

5

6

0

2

0

8

5

0

9

2

8

8

1

2

4

1

6

4

6

7

6

0

0

1

2

0

~

2

5

0

FAI CLIC QUI PER CONSULTARE TUTTI

GLI SCHEMI TECNICI DEL MODELLO

VAM-FC9 SU MY.DAIKIN.EU