SCHEMI TECNICI DETTAGLIATI

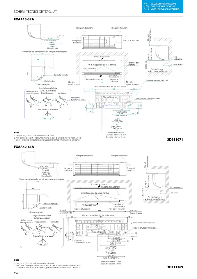
FXAA15-32A

NOTE

1. Il segno "

NOTE

~ 365

Tubo di scarico

~ 420

Linea gas

~460

Linea liquido

Dimensioni del pannello frontale completamente aperto

Foro per le

tubazioni

50 o più

Spazio richiesto

Raffrescamento

Deumidi

ficazione

27°

58°

Riscaldamento

Ventilatore

108

60

625

62

Filtro refrigerante

~ 290

Tubo

flessibile

~308

98

Tubo flessibile

Linea gas

CuT Ø 9,5mm

~460

Tubo di scarico VP13

Diametro interno: 15 mm

Diametro esterno: 18 mm

Foro per le tubazioni

Raffrescamento

Deumidificazione

27°

58°

Su/gi

ù (automatico)

Riscaldamento

Ventilatore

Dimensioni esterne dell'unità

Foro per le tubazioni incassate

50°

19°

16°

64°

12°

25°

42°

266

50°

55°

19°

16°

64°

12°

25° 42°

450

Griglia frontale

Foro pretagliato.

Angolazione dell’aletta

Su/gi

ù (automatico)

Ubicazione standard dei fori nella parete

Sinistra/destra (manuale)

" indica la direzione delle tubazioni.

2. Non collocare oggetti sotto l’unit

à interna. In caso di umidità elevata (>80%), fori di

scarico intasati o

filtri dell’aria sporchi, possono veri

ficarsi fuoriuscite di condensa.

FXAA40-63A

Circa 365

Tubo di scarico

Circa 420

Linea gas

Circa 460

Linea liquido

Foro per le

tubazioni

Foro per le

tubazioni

Dimensioni del pannello frontale completamente aperto

450

269

Portata d’aria interna

Posizione della targhetta

Ubicazione standard dei fori nella parete

894

FORO PER PARETE IN CALCESTRUZZO

UTILIZZAREILMETROCOMEMOSTRATOINFIGURA

L

A

A

LT

R

E

G

Z

H

Z

E

A

Z

U

ZA

NI

U

TÀ

N

:

I

2

TÀ

90

:1

m

.0

m

50mm

POSIZIONARE UNA LIVELLA

Foro pretagliato.

120 o meno

Pannello frontale

Griglia frontale

50 o più

Spazio richiesto

Foro pretagliato.

Angolazione dell’aletta

104

60

50 o più

Spazio richiesto

52

98

55°

Sinistra/destra (manuale)

57°

Filtro refrigerante

Tubo di scarico VP13

Diametro interno: 15 mm

Diametro esterno: 18 mm

125mmVERSOILLATO

SINISTRO DELL'UNIT

TU

V

C

B

E

E

A

R

N

S

Z

T

O

IO

R

S

O

N

IN

E

F

I

8

O

S

3

T

R

R

m

O

A

m

Foro per le

tubazioni incassate

P

il

o

b

s

o

iz

r

i

d

o

o

na

d

r

el

metro in

VERSO LO SCHEMA DELL'UNIT

525 mm VERSO DESTRA E SINISTRA

145 mm VERSO L'ALTO E IL BASSO

centro unit

E

lin

st

e

re

a

m

de

it

l

li

d

q

e

u

l

i

l

d

a

o

Estremità della linea del gas

1. Il segno "

2. Non collocare oggetti sotto l’unit

à interna. In caso di umidità elevata (>80%), fori di

216

" indica la direzione delle tubazioni.

scarico intasati o

filtri dell’aria sporchi, possono veri

ficarsi fuoriuscite di condensa.

3D111369

Foro per le

tubazioni incassate

Foro per le tubazioni incassate

Pannello frontale

Per installazione in

ambienti con so

ffitto alto

Dimensioni esterne dell'unità

57°

Foro per le tubazioni

Foro per le tubazioni

Foro per le tubazioni

Posizione della

targhetta

50 o più

Spazio richiesto

Foro per le tubazioni

Portata d’aria interna

Foro

pretagliato.

120 o meno

~415

Per installazione in

ambienti con so

ffitto alto

3D131071

Viti di

fissaggio della griglia frontale

Aletta orizzontale

Bocchetta

mandata aria

Foro per le tubazioni

Foro per le

795

tubazioni

Linea liquido

CuT Ø 6,4mm

Ø ~475

4

5

°

4

5

°

O

8

0

O

8

0

O

8

0

Viti di fissaggio della griglia frontale

Aletta orizzontale

Foro per le tubazioni

1050

Bocchetta

mandata aria

Foro per le tubazioni

45°

45°

ENTRO FORO

100 mm

TU

V

C

B

E

A

E

R

N

Z

SO

T

IO

R

I

N

O

L

E

B

F

:

A

O

9

S

0

R

S

O

m

O

m

LA

D

T

V

E

O

E

L

R

L

D

'

S

U

E

O

N

S

I

T

L

R

O

IN

F

D

I

E

S

C

L

S

L

A

'U

G

SO

N

G

IT

D

O

I

A

C

T

Q

A

U

M

E

E

S

Z

T

Z

A

O

PI

V

A

I

S

T

T

I,

RA

F

P

IS

A

SA

T

RE

A

L

ALLA

P

L

AR

V

E

ITE

CON

1

D

U

0

E

0

B

ST

A

m

R

Z

m

A

IO

V

N

E

E

RSO

Circa 290

Tubo flessibile

Circa 300

Tubo flessibile

Circa 415

O

8

0

Linea gas

CuT Ø 12,7mm

Circa 460

Linea liquido

CuT Ø 6,4mm

Circa 475

4

4

1

0

5

4

4

1

4

.

5

2

9

0

2

5

0

0

o

p

i

u

̀

4

4

1

0

5

3

0

o

p

i

u

̀

S

p

a

z

i

o

r

i

c

h

i

e

s

t

o

9

0

o

p

i

u

̀

S

p

a

z

i

o

r

i

c

h

i

e

s

t

o

2

5

0

0

o

p

i

u

̀

3

0

o

p

i

u

̀

S

p

a

z

i

o

r

i

c

h

i

e

s

t

o

9

0

o

p

i

u

̀

S

p

a

z

i

o

r

i

c

h

i

e

s

t

o

4

4

1

4

2

9

0

FAI CLIC QUI PER CONSULTARE

TUTTI GLI SCHEMI TECNICI DEL

MODELLO FXAA-A SU MY.DAIKIN.EU