SCHEMI TECNICI DETTAGLIATI

FXMA200-250A

A

1490

1260

666

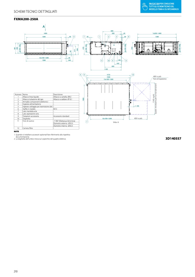
Numero

1

Attacco linea liquido

2

Attacco tubazione del gas

3

Armadio componenti elettronici

4

Ingresso alimentazione

5

Ingresso cablaggio per trasmissione dati

6

Sta

ffa in metallo

7

Lato mandata aria

8

Lato aspirazione aria

9

Tubazioni accessorie

10

Targhetta

11

Foro di scarico

12

Camera

filtro

NOTE

Nome

Descrizione

Attacco a cartella ·Ø9,5

Attacco a saldare ·Ø19,1

-

-

-

M10

-

-

Accessorio standard

-

·1"·BSP (filettatura femmina)

Diametro esterno: ·Ø33.3·

Diametro interno: ·Ø30.3·

-

1. Quando si installano accessori opzionali fare riferimento alla rispettiva

documentazione.

2. La targhetta dell’unit

à si trova sul coperchio del quadro elettrico.

3D140557

210

65

9

7

30

1

43

28

8

4

7x200= 1400

1390

·600· o pi

Foro di ispezione

6

8

1572

12

7

Vista ·A·

12x100= 1200

·650· o pi

~ 150

3

5

2

3

x

1

0

0

=

3

0

0

12x100= 1200

29

245

1288

585

2

3

3

x

1

0

0

=

3

0

0

10

5

600

11

1100

145

242

3

x

1

0

0

=

3

0

0

1526

13x100= 1300

3

0

3

1

7

3

6

4

1

0

2

8

4

7

0

·

1

1

4

3

·

o

p

i

u

̀

S

p

a

z

i

o

n

e

c

e

s

s

a

r

i

o

p

e

r

l

a

m

a

n

u

t

e

n

z

i

o

n

e

3

8

1

3

x

1

0

0

=

3

0

0

4

1

0

4

3

4

FAI CLIC QUI PER CONSULTARE

TUTTI GLI SCHEMI TECNICI DEL

MODELLO FXMA-A SU MY.DAIKIN.EU