FXSA15-32A

170

O100

(Foro pretagliato)

Posizione entrata aria di rinnovo

126 P.C.D.

4-M4 (classe 2)

Vite di sospensione

588

Punto di sospensione

550

69

40

25

800

Vista C

504

150

145

Vista ·A·

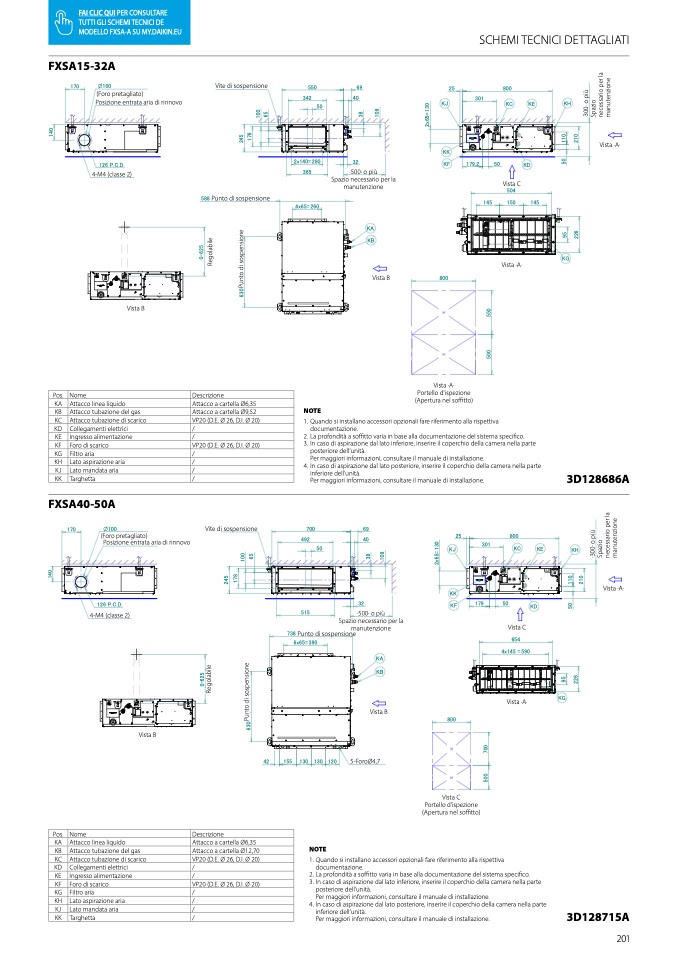
Pos. Nome

KA Attacco linea liquido

KB Attacco tubazione del gas

KC Attacco tubazione di scarico

KD Collegamenti elettrici

KE Ingresso alimentazione

KF Foro di scarico

KG Filtro aria

KH Lato aspirazione aria

KJ Lato mandata aria

KK Targhetta

FXSA40-50A

Descrizione

Attacco a cartella Ø6,35

Attacco a cartella Ø9,52

VP20 (D.E. Ø 26, D.I. Ø 20)

/

/

VP20 (D.E. Ø 26, D.I. Ø 20)

/

/

/

/

Vite di sospensione

NOTE

170

O100

(Foro pretagliato)

Posizione entrata aria di rinnovo

700

69

40

32

·500· o pi

Spazio necessario per la

manutenzione

126 P.C.D.

4-M4 (classe 2)

V

Vieiswta·B·

KD

654

4x145 = 590

Vista ·A·

Pos. Nome

KA Attacco linea liquido

KB Attacco tubazione del gas

KC Attacco tubazione di scarico

KD Collegamenti elettrici

KE Ingresso alimentazione

KF Foro di scarico

KG Filtro aria

KH Lato aspirazione aria

KJ Lato mandata aria

KK Targhetta

Descrizione

Attacco a cartella Ø6,35

Attacco a cartella Ø12,70

VP20 (D.E. Ø 26, D.I. Ø 20)

/

/

VP20 (D.E. Ø 26, D.I. Ø 20)

/

/

/

/

1.

2.

3.

4.

Quando si installano accessori opzionali fare riferimento alla rispettiva

documentazione.

La profondit

à a soffitto varia in base alla documentazione del sistema speci

fico.

In caso di aspirazione dal lato inferiore, inserire il coperchio della camera nella parte

posteriore dell’unità.

Per maggiori informazioni, consultare il manuale di installazione.

In caso di aspirazione dal lato posteriore, inserire il coperchio della camera nella parte

inferiore dell’unità.

Per maggiori informazioni, consultare il manuale di installazione.

Vista B

Vista B

800

Vista ·A·

Portello d'ispezione

(Apertura nel soffitto)

View ·B·

42

155 130 130 120

NOTE

800

Vista C

Portello d'ispezione

(Apertura nel soffitto)

32

·500· o pi

Spazio necessario per la

manutenzione

KA

KB

KK

KF

179.2

50

KD

1. Quando si installano accessori opzionali fare riferimento alla rispettiva

documentazione.

2. La profondit

à a soffitto varia in base alla documentazione del sistema speci

fico.

3. In caso di aspirazione dal lato inferiore, inserire il coperchio della camera nella parte

posteriore dell’unità.

Per maggiori informazioni, consultare il manuale di installazione.

4. In caso di aspirazione dal lato posteriore, inserire il coperchio della camera nella parte

inferiore dell’unità.

Per maggiori informazioni, consultare il manuale di installazione.

3D128686A

738

Punto di sospensione

Vista C

KA

KB

Vista B

5-ForoØ4,7

KG

KJ

KH

SCHEMI TECNICI DETTAGLIATI

145

25

800

301

KJ

K

C

K

E

KH

KK

KF

179

50

Vista ·A·

KG

3D128715A

Vista ·A·

201

301

KC

KE

342

50

2x140= 280

365

9

5

2

2

6

4x65= 260

492

50

515

6x65= 390

5

0

0

7

0

0

5

0

0

5

5

0

6

3

0

1

0

0

6

5

3

8

1

0

9

2

x

6

5

=

1

3

0

0

̴

6

2

5

R

e

g

o

l

a

b

i

l

e

A

d

j

u

s

t

a

b

l

e

P

S

u

s

n

p

t

e

o

n

s

d

i

o

i

n

s

p

o

s

p

i

t

i

e

o

n

s

i

o

n

e

2

4

5

1

7

8

0

̴

6

2

5

R

e

g

o

l

a

b

i

l

e

6

3

0

P

u

n

t

o

d

i

s

o

s

p

e

n

s

i

o

n

e

2

4

5

1

7

8

9

5

2

2

6

5

0

1

1

0

2

1

0

5

0

1

1

0

2

1

0

1

4

0

1

4

0

·

3

0

0

·

o

p

i

u

̀

S

p

a

z

i

o

n

e

c

e

s

s

a

r

i

o

p

e

r

l

a

m

a

n

u

t

e

n

z

i

o

n

e

·

3

0

0

·

o

p

i

u

̀

S

p

a

z

i

o

n

e

c

e

s

s

a

r

i

o

p

e

r

l

a

m

a

n

u

t

e

n

z

i

o

n

e

1

0

0

6

5

3

8

1

0

9

2

x

6

5

=

1

3

0

FAI CLIC QUI PER CONSULTARE

TUTTI GLI SCHEMI TECNICI DE

MODELLO FXSA-A SU MY.DAIKIN.EU