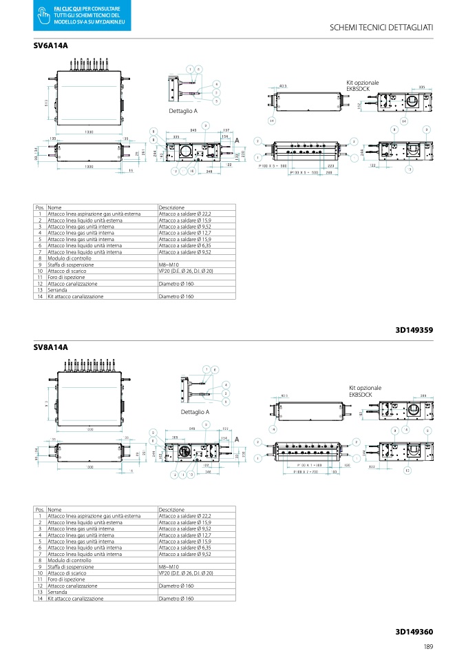
SV6A14A

SV6A14A

Item Name

Outdoor unit suction gas pipe connection port

Dettaglio A

Description

Ø ·22.2· brazing connection

Pos. Nome

Descrizione

1 Attacco linea aspirazione gas unit

à esterna

Attacco a saldare Ø 22,2

Duct connection kit

V8A14A

SV8A14A

Diameter ·Ø160·

Diameter ·Ø160·

Dettaglio A

3D149359

3D149359

Outdoor unit liquid pipe connection port

Ø ·15.9· brazing connection

2 Attacco linea liquido unit

à esterna

Attacco a saldare Ø 15,9

3 Attacco linea gas unità interna

Attacco a saldare Ø 9,52

Indoor unit gas pipe connection port

Ø ·9.52· brazing connection

4 Attacco linea gas unit

à interna

5 Attacco linea gas unità interna

Attacco a saldare Ø 12,7

Indoor unit gas pipe connection port

Ø ·12.7· brazing connection

6 Attacco linea liquido unit

à interna

Attacco a saldare Ø 6,35

Attacco a saldare Ø 9,52

7 Attacco linea liquido unità interna

Indoor unit gas pipe connection port

Ø ·15.9· brazing connection

8 Modulo di controllo

9 Sta

ffa di sospensione

M8~M10

Indoor unit liquid pipe connection port

Ø ·6.35· brazing connection

10 Attacco di scarico

VP20 (D.E. Ø 26, D.I. Ø 20)

11 Foro di ispezione

Indoor unit liquid pipe connection port

Ø ·9.52· brazing connection

12 Attacco canalizzazione

Diametro Ø 160·

13 Serranda

Control box

14 Kit attacco canalizzazione

Diametro Ø 160·

Suspension bracket

Drain socket

Inspection hole

Duct connection

Damper

M8~M10

VP20 (OD Ø26, ID Ø20)

Item Name

Outdoor unit suction gas pipe connection port

Description

Ø ·22.2· brazing connection

Pos. Nome

1 Attacco linea aspirazione gas unit

à esterna

Descrizione

Attacco a saldare Ø 22,2

Outdoor unit liquid pipe connection port

Ø ·15.9· brazing connection

2 Attacco linea liquido unit

à esterna

3 Attacco linea gas unità interna

Attacco a saldare Ø 15,9

Indoor unit gas pipe connection port

Attacco a saldare Ø 9,52

4 Attacco linea gas unit

à interna

5 Attacco linea gas unità interna

Ø ·9.52· brazing connection

Indoor unit gas pipe connection port

Ø ·12.7· brazing connection

6 Attacco linea liquido unit

à interna

Attacco a saldare Ø 6,35

Attacco a saldare Ø 9,52

7 Attacco linea liquido unità interna

Indoor unit gas pipe connection port

Ø ·15.9· brazing connection

8 Modulo di controllo

9 Sta

ffa di sospensione

M8~M10

Indoor unit liquid pipe connection port

Ø ·6.35· brazing connection

10 Attacco di scarico

VP20 (D.E. Ø 26, D.I. Ø 20)

11 Foro di ispezione

Indoor unit liquid pipe connection port

Ø ·9.52· brazing connection

12 Attacco canalizzazione

Diametro Ø 160·

13 Serranda

Control box

14 Kit attacco canalizzazione

Diametro Ø 160·

Suspension bracket

Drain socket

Inspection hole

Duct connection

Damper

M8~M10

VP20 (OD Ø26, ID Ø20)

Duct connection kit

Diameter ·Ø160·

Diameter ·Ø160·

3D149360

Attacco a saldare Ø 15,9

Attacco a saldare Ø 12,7

Attacco a saldare Ø 15,9

SCHEMI TECNICI DETTAGLIATI

Kit opzionale

EKBSDCK

Kit opzionale

EKBSDCK

3D149360

189

0

0

5

=

5

X

0

0

1

P

0

0

7

=

7

X

0

0

1

P

0

0

7

=

7

X

0

0

1

P

3

1

9

9

0

0

0

1

5

0

3

5



0

4

3

1

9

9

5

0

3

4

1

4

1

2

2

1

2

2

1

0

0

5

=

5

X

0

0

1

P

2

2

1

1

6

2

1

6

2

0

2

1

0

8

1

6

4

3

2

2

1

1

1

1

1

9

3

8

2

0

6

2

2

2

3

2

2

4

0

4

9

9

1

4

4

1

3

A

B

C

D

E

F

G

H

2

2

0

8

2

0

2

2

6

4

3

A

B

C

D

E

F

2

2

A

5

.

0

4

4

1

0

3

0

1

4

1

4

5

1

7

9

1

5

3

1

9

4

5

1

5

0

3

1

5

4

8

9

0

3

0

1

5

3

1

5

1

0

1

1

1

2

1

A

8

5

4

8



1

1

1

2

1

5

0

3

9

5

3

3

4

6

7

1

9

1

1

1

3

8

2

6

2

2

3

0

2

2

2

4

9

1

4

0

9

4

3

4

1

8

9

5

3

1

6

1

6

1

5

3

3

4

6

7

0

0

0

1

5

3

1

5

1

4

1

3

1

2

1

1

1



1

9

8

7

6

5

4

3

2

1

4

4

1

3

1

2

1

1

1



1

9

8

7

6

5

4

3

2

1

4

FAI CLIC QUI PER CONSULTARE

TUTTI GLI SCHEMI TECNICI DEL

MODELLO SV-A SU MY.DAIKIN.EU

S