X

I

L

A

S

T

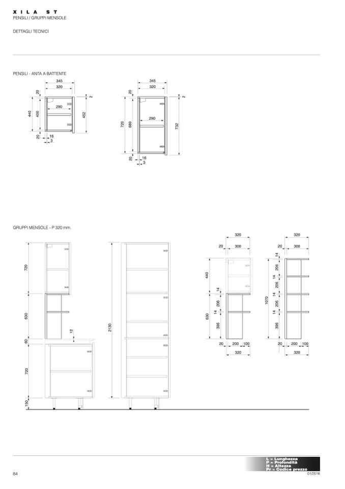
PENSILI / GRUPPI MENSOLE

DETTAGLI TECNICI

PENSILI - ANTA A BATTENTE

345

345

320

320

290

290

16

3

16

3

GRUPPI MENSOLE - P 320 mm.

320

320

20

20

300

300

20

200

100

20

200

100

320

320

84

01/2016

L = Lunghezza

P = Profondità

H = Altezza

Pr = Codice prezzo

1

5

0

7

2

0

6

0

6

3

0

7

2

0

1

2

2

1

3

0

6

3

0

4

4

0

1

4

1

4

3

9

6

2

0

6

1

0

7

0

1

4

1

4

1

4

3

9

6

2

0

6

2

0

6

2

0

6

1

4

2

0

7

2

0

6

8

0

2

0

2

0

4

4

0

4

0

0

2

0

7

3

2

4

5

2

2

2