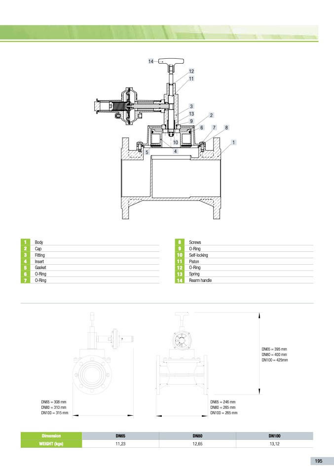
1

Body

8

2

Cap

9

Screws

O-Ring

Self-locking

Piston

O-Ring

Spring

Rearm handle

3

Fitting

4

Insert

5

Gasket

6

O-Ring

7

O-Ring

10

11

12

13

14

DN65 = 308 mm

DN80 = 310 mm

DN100 = 315 mm

Dimension

Dn65

wEIGHT (kgs)

11,23

DN65 = 246 mm

DN80 = 265 mm

DN100 = 265 mm

5

14

12

11

3

13

9

10

1

4

Dn80

12,65

Dn100

2

6

7

8

DN65 = 395 mm

DN80 = 400 mm

DN100 = 425mm

13,12

195