MINI VRF A 2 TUBI

MiNi-SMMS

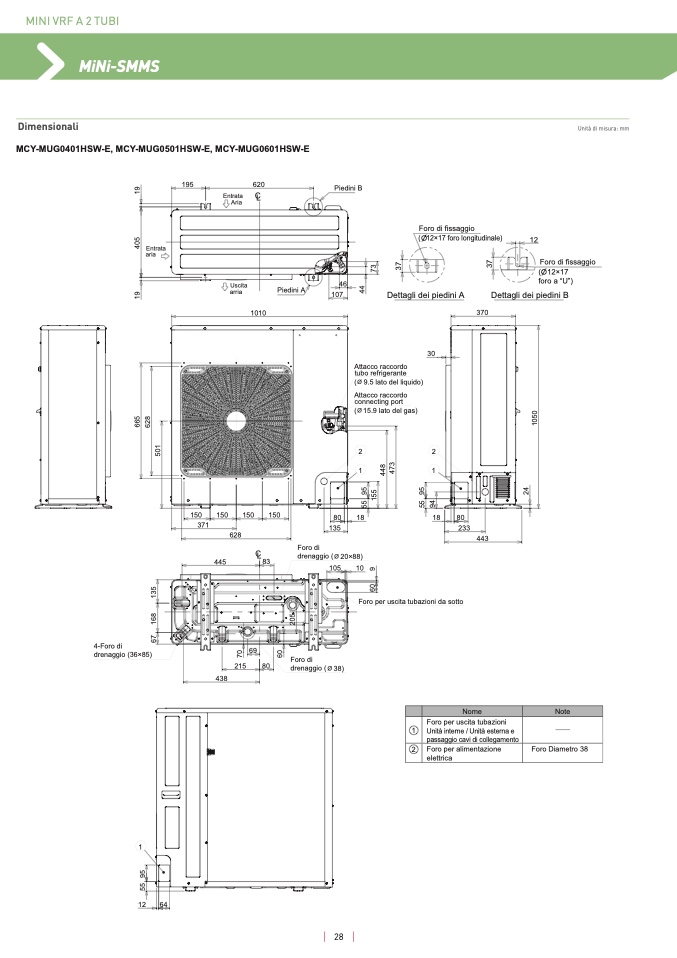
Dimensionali

Unità di misura: m

m

MCY-MUG0401HSW-E, MCY-MUG0501HSW-E, MCY-MUG0601HSW-E

195

62

0

4

0

5

1

9

Entrata

ari

a

1

9

6

6

5

6

2

8

Entrata

Ari

a

C

L

Uscit

a

arria

1010

Piedini A

4

6

107

Piedini

B

4

4

7

3

Attacco raccordo

tubo refrigerant

e

(Ø 9.5 lato del liquido

)

Attacco raccordo

connecting port

1

0

5

0

5

0

1

6

7

1

6

8

1

3

5

4-Foro d

i

drenaggio (36×85)

150

150

150

150

37

1

628

C

L

445

83

7

0

69

6

0

215

80

Foro di fissaggi

o

( 12×17 foro longitudinale)

1

2

3

7

3

7

Foro di fissaggio

( 12×17

foro a “U”)

Dettagli dei piedini A

Dettagli dei piedini B

37

0

3

0

(Ø 15.9 lato del gas)

2

2

1

4

4

8

4

7

3

1

5

5

9

5

1

5

5

5

5

9

5

9

4

80

18

18

135

44

3

Foro d

i

drenaggio (Ø 20×88

)

105

10

9

6

0

Foro per uscita tubazioni da sotto

2

0

5

Foro d

i

drenaggio ( Ø 38)

2

4

80

233

438

N

m

o

e

o

N

e

t

1

2

Foro per uscita tubazion

i

Unità interne / Unità esterna e

passaggio cavi di collegamento

Foro per alimentazione

elettrica

Foro Diametro 38

1

9

5

5

5

12

64

28